南翔生活网
  • 嘉定新闻
  • 精彩活动
  • 技术案例
  • 祥友汇
    • 儿童之家
    • 妇女之家
    • 志愿服务队
  • 党群微网站
  • 社区信息
  • 政策解读
嘉定生活门户网站,嘉定网络的商业平台
服务热线:021-69982177

南翔新闻

查看全部

【最新】共计2000余户!南翔、江桥最新住宅项目规划出炉

06-12
6738
导读
- 2020年的第163天 - 嘉定明日天气:中雨 31℃/25℃ 近日,嘉定规资局发布了嘉定南翔、江桥两地共三处最新住宅项目规划,共涉及2312户。南翔生活网…

– 2020年的第163天 –

嘉定明日天气:中雨 31℃/25℃

近日,嘉定规资局发布了嘉定南翔、江桥两地共三处最新住宅项目规划,共涉及2312户。南翔生活网注意到,南翔项目位于云翔大居(789户),江桥项目有两个,全部位于封浜,分别涉及1081户和442户。

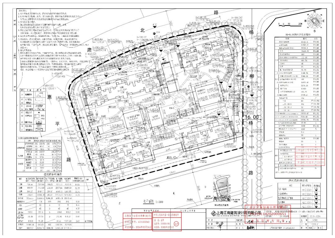
●云翔拓展大居26A-11A地块●

嘉定区云翔拓展大居26A-11A地块

共有产权保障住房设计方案公示

 

 

新建工程位于嘉定区南翔镇内,

东至嘉年路、南至公共通道边界、

西至封浜河、北至嘉前路。

工程由上海鲁郡置业有限公司投资建设,

拟新建保障房,

总建筑面积74855.43平方米。

 

经济技术指标

 

 

该项目共设有519个机动车停车位,

建成后将有789户

 

户型比

 

 

社区配套&物业

 

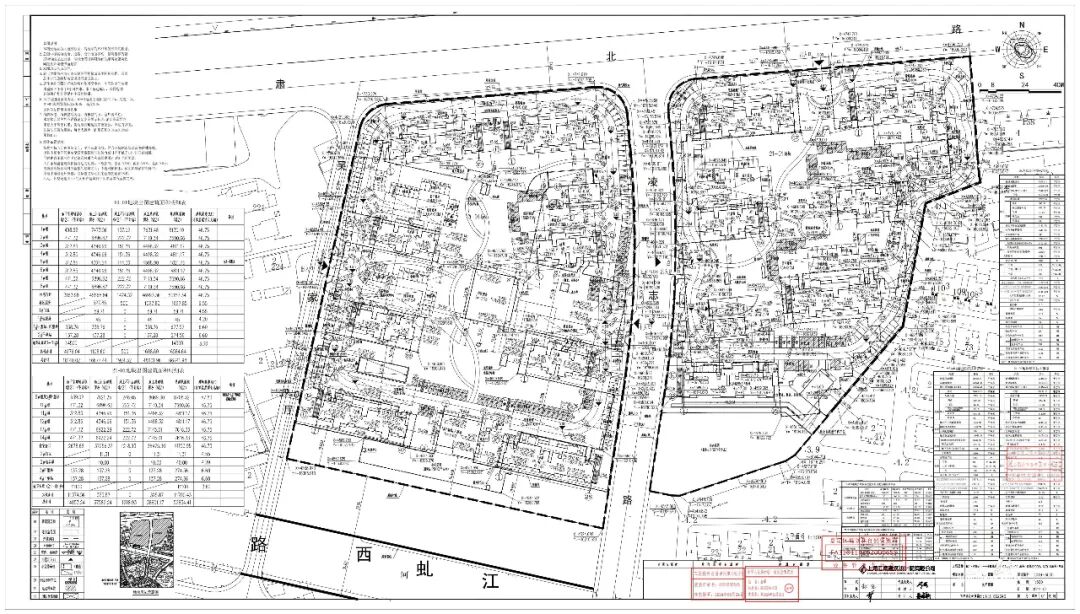
●江桥封浜集镇安置基地●

10-01、21-01地块
(江桥AZ009、AZ010地块)项目

 

 

建设位置

 

位于嘉定区江桥镇

东至基地便捷,南至基地边界、西虬江,

西至吴家厅路,北至肃北路

 

▲点击图片可放大查看

  根据此前公示的设计方案,
该项目总建面119596.39㎡、
总户数1081户共设有机动车停车位1100个。

 
●江桥封浜集镇安置基地●
 
 

 
06-01地块(江桥AZ003地块)项目

  建设位置   位于嘉定区江桥镇,
东至杨柳桥路,南至西虬江,
西至惠平路,北至肃北路

▲点击图片可放大查看   该项目总建面54424.37㎡,
住宅442户,机动车停车位408个     根据此前的规划, 该项目建筑类型
主要为 19、18、15 层的高层住宅, 设有一个地下车库, 设置一个社区服务中心, 用地性质为动迁安置房及配套设施。    

来源 | 嘉定规划与自然资源局

编辑 | 花花

点击以下图片回顾精彩

 

更多南翔精彩资讯,关注南翔生活网网官方微信

要闻快讯

查看全部
25号截止!这个帮扶项目征集抓紧申报!
【聚变计划】参与式工作坊开放报名
项目发布|2023年北京市妇联公益伙伴计划暨妇女儿童家庭公益服务创新项目征集启事
汪明亮:电子监控的犯罪预防功能
最美退役军人网络投票活动
古猗园荷花睡莲展荷花九景评选活动
嘉定区青少年法律知识新媒体竞答比赛
澳洲klook0元游澳洲
Student.com学旅家WorldCup世界杯

嘉定生活门户网站,嘉定网络的商业平台
服务热线:13916893730
技术支持:安拓网络Anttoweb
网站备案:沪ICP备13042283号-1
  • 网站介绍
  • 打折卡销售点
  • 服务条款
  • 招聘信息
  • 免责声明
  • 联系我们
  • 南翔派出所网上工作站
  • 模特衣架公司
  • 控件中国网
  • 闵行社区论坛
  • 嘉定都市网
  • 绍兴租房
  • 宝山网
  • 九亭论坛
  • 花桥生活网
  • 奉贤房产网
  • 上海团购大全
  • 申城热线
  • 上海鲜花
  • 南翔网
  • 南翔人论坛
  • 安亭热线
  • 新桥论坛
  • 上海列表网
  • 上海租房
  • 360免费杀毒
  • 上海房屋维修
  • 360网站导航
  • 南翔智地
  • 放心搜
  • 上海业主论
  • 安拓网络Anttoweb
  • 坛祥生活商
  • 城维沃珂网销联合办公