南翔生活网
  • 嘉定新闻
  • 精彩活动
  • 技术案例
  • 祥友汇
    • 儿童之家
    • 妇女之家
    • 志愿服务队
  • 党群微网站
  • 社区信息
  • 政策解读
嘉定生活门户网站,嘉定网络的商业平台
服务热线:021-69982177

南翔新闻

查看全部

【重磅】一条路上,新建2学校!嘉定这里教育配套迅猛发力!

09-03
6625
导读
- 2021年的第242天 - 嘉定明日天气:小雨 30℃/23℃ 嘉定即将新建两所学校! 这两所学校都位于嘉定工业区! 18班幼儿园和20班初中! 一起来看看…

– 2021年的第242天 –

嘉定明日天气:小雨 30℃/23℃

嘉定即将新建两所学校!
这两所学校都位于嘉定工业区!
18班幼儿园和20班初中!
一起来看看↓
嘉定工业区盘安路幼儿园
共18个班!
总建筑面积7620平方米!
嘉定工业区盘安路幼儿园
建设工程规划许可证和总平面图已经公开!
该项目建设单位为上海市嘉定区教育局,嘉定工业区东至基地边界,西至盘安路,北至基地边界,南至胜竹路/范家港。
小编也将该幼儿园地址在地图上标注了出来,供大家参考。
 
总建筑面积7620平方米
计容建筑面积7505.14平方米
将建18班幼儿园!

  关于盘安路幼儿园,南翔生活网也一直在给大家跟进该学校项目进展。   7月份该地块就已进入了招标阶段,工程总投资为5009.24万元,监理服务周期为330日历天。紧接着该地块已进入土地征收阶段。    

前期效果图

 

前期平面图

 
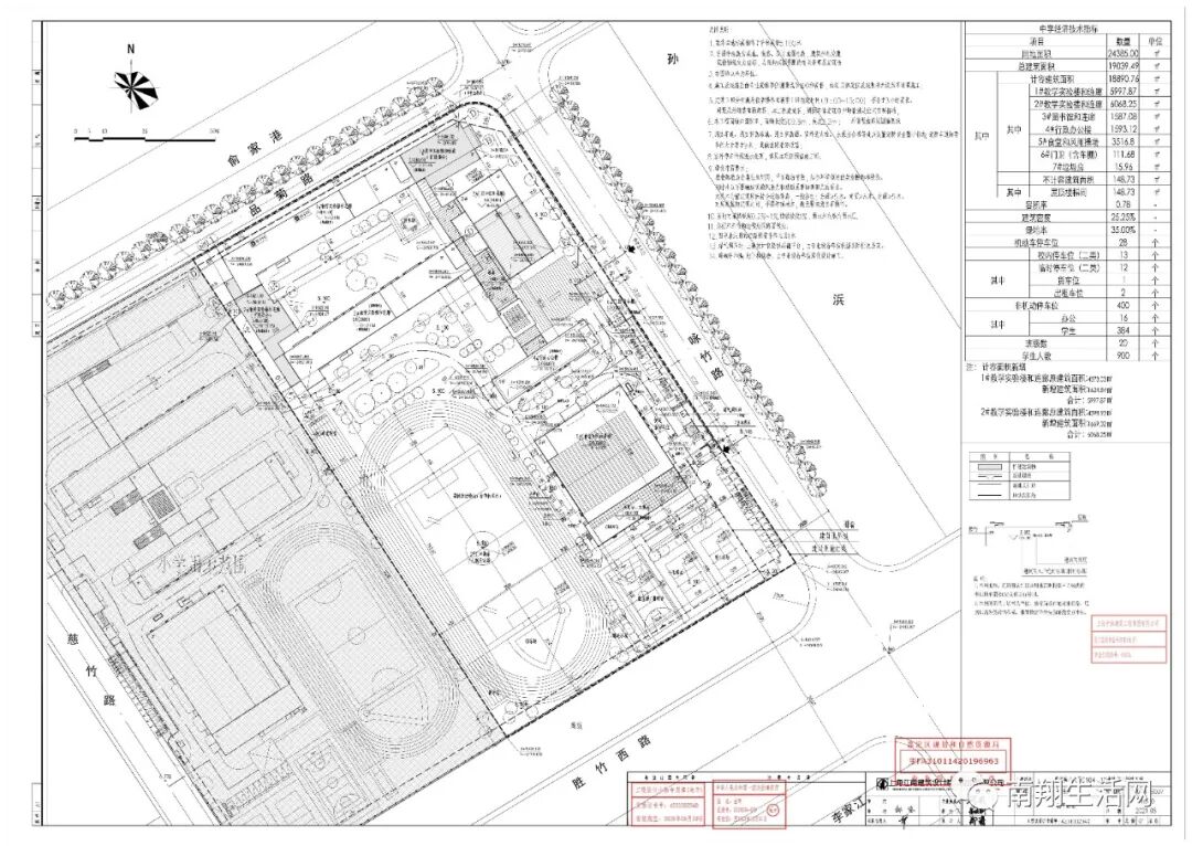
嘉定城北大居0104-12地块初中
  该学校项目由上海市嘉定区住宅发展中心建设,建设地址位于嘉定工业区,东至咏竹路,南至胜竹路,西至基地边界,北至品菊路。  

 

学校总共用地面积为24385.00平方米,学校将建20个班,学生人数为900人。

 
本次出炉的是该项目的调整规划,学校计容面积新增:
1#教学实验楼和连廊原建筑面积:4373.03㎡
新增建筑面积:1624.84㎡
合计:5997.87㎡
2#教学实验楼和连廊原建筑面积:4398.93㎡
新增建筑面积:1669.32㎡
合计:6068.25㎡

关于该幼儿园的相关信息此前南翔生活网已经分享过,早在19年,这所学校已经开工建设。

▲ 学校位置图

▲ 学校位置图

效果图

希望嘉定这两所学校早日建设完成!

缓解周边就学压力!

 

编辑 | 晓舟

来源 | 嘉定规资局

免责声明:本平台对转载、分享的内容、陈述、观点判断保持中立,仅供读者参考。本平台推送的广告信息、内容及设计均归广告主所有,本平台只作为发布方进行推送,因内容引起的任何纠纷与本平台无关,本公众平台将不承担任何责任。

                   

               

                   

   

更多南翔精彩资讯,关注南翔生活网网官方微信

要闻快讯

查看全部
25号截止!这个帮扶项目征集抓紧申报!
【聚变计划】参与式工作坊开放报名
项目发布|2023年北京市妇联公益伙伴计划暨妇女儿童家庭公益服务创新项目征集启事
汪明亮:电子监控的犯罪预防功能
最美退役军人网络投票活动
古猗园荷花睡莲展荷花九景评选活动
嘉定区青少年法律知识新媒体竞答比赛
澳洲klook0元游澳洲
Student.com学旅家WorldCup世界杯

嘉定生活门户网站,嘉定网络的商业平台
服务热线:13916893730
技术支持:安拓网络Anttoweb
网站备案:沪ICP备13042283号-1
  • 网站介绍
  • 打折卡销售点
  • 服务条款
  • 招聘信息
  • 免责声明
  • 联系我们
  • 南翔派出所网上工作站
  • 模特衣架公司
  • 控件中国网
  • 闵行社区论坛
  • 嘉定都市网
  • 绍兴租房
  • 宝山网
  • 九亭论坛
  • 花桥生活网
  • 奉贤房产网
  • 上海团购大全
  • 申城热线
  • 上海鲜花
  • 南翔网
  • 南翔人论坛
  • 安亭热线
  • 新桥论坛
  • 上海列表网
  • 上海租房
  • 360免费杀毒
  • 上海房屋维修
  • 360网站导航
  • 南翔智地
  • 放心搜
  • 上海业主论
  • 安拓网络Anttoweb
  • 坛祥生活商
  • 城维沃珂网销联合办公