南翔生活网
  • 嘉定新闻
  • 精彩活动
  • 技术案例
  • 祥友汇
    • 儿童之家
    • 妇女之家
    • 志愿服务队
  • 党群微网站
  • 社区信息
  • 政策解读
嘉定生活门户网站,嘉定网络的商业平台
服务热线:021-69982177

南翔新闻

查看全部

【重磅利好】南翔颜值爆表新中学!总投资1.47亿!明年投入使用!

01-12
21242
导读
 - 2021年的第11天 -嘉定明日天气:晴 8℃/-1℃嘉定又有一中学即将开建!总投资1.47亿打造高颜值学校!就在南翔! 嘉定区南翔镇惠亚路中学新建工程目…
 – 2021年的第11天 –
嘉定明日天气:晴 8℃/-1℃
嘉定又有一中学即将开建!
总投资1.47亿打造高颜值学校!
就在南翔!
嘉定区南翔镇惠亚路中学新建工程
目前已取得施工许可证并开工建设
工程计划于2022年6月建设完成
预计2022年9月投入使用!
快来一起了解一下吧!

惠亚路中学

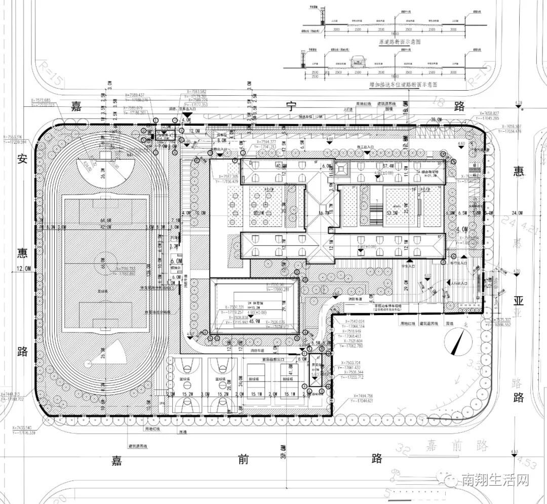
惠亚路中学是由嘉定教育局建设,上海市浦东新区建设(集团)有限公司施工,位于嘉定区南翔镇,东至惠亚路,南至嘉前路,西至安惠路,北至嘉宁路。

预建30班规模初中

该工程项目位于嘉定区南翔镇,总投资14746.74万元。
预计新建30班规模初中,用地面积为30196.0平方米,建设内容包括教学楼、行政办公室、图书馆、体育馆、食堂等,建筑面积为20521.4平方米。

高颜值建筑风格

从效果图上来看,这座学校简直颜值爆表!选用的上世纪三四十年代的海派建筑风格,像极了上海老洋房!透露着一种贵族气息,别有一番风韵~

 
▲惠亚路入口建设效果图
▲嘉宁路入口建设效果图

实地探访

小编今日去实地探访了下,给大家带来最新实拍~
目前该项目由上海市嘉定城市发展集团有限公司代建。
可以看出项目已经完成净地,并进行了平整,目前已进入打桩阶段。

南翔镇2035规划中学

在此前发布的南翔2035规划中已经圈出了该中学的位置
↓
小编也将学校的位置在地图上标出来了~
该学校建成后能有效缓解区域内学生就近入学压力,为学生和家长提供方便就近、高质量的教育服务。

一点感想:很多时候不用临渊羡鱼,或许最好的不是最早的。就像年会开奖,最先开的只有小奖,一等奖和特等奖都在最后。会不会有更多更好教育资源后续挂牌或进驻南翔?值得期待!

编辑 | 晓舟、小龙
拍摄 | TiTi
来源 | 嘉定城发集团、南翔生活网
免责声明:本平台对转载、分享的内容、陈述、观点判断保持中立,仅供读者参考。本平台推送的广告信息、内容及设计均归广告主所有,本平台只作为发布方进行推送,因内容引起的任何纠纷与本平台无关,本公众平台将不承担任何责任。

更多南翔精彩资讯,关注南翔生活网网官方微信

要闻快讯

查看全部
25号截止!这个帮扶项目征集抓紧申报!
【聚变计划】参与式工作坊开放报名
项目发布|2023年北京市妇联公益伙伴计划暨妇女儿童家庭公益服务创新项目征集启事
汪明亮:电子监控的犯罪预防功能
最美退役军人网络投票活动
古猗园荷花睡莲展荷花九景评选活动
嘉定区青少年法律知识新媒体竞答比赛
澳洲klook0元游澳洲
Student.com学旅家WorldCup世界杯

嘉定生活门户网站,嘉定网络的商业平台
服务热线:13916893730
技术支持:安拓网络Anttoweb
网站备案:沪ICP备13042283号-1
  • 网站介绍
  • 打折卡销售点
  • 服务条款
  • 招聘信息
  • 免责声明
  • 联系我们
  • 南翔派出所网上工作站
  • 模特衣架公司
  • 控件中国网
  • 闵行社区论坛
  • 嘉定都市网
  • 绍兴租房
  • 宝山网
  • 九亭论坛
  • 花桥生活网
  • 奉贤房产网
  • 上海团购大全
  • 申城热线
  • 上海鲜花
  • 南翔网
  • 南翔人论坛
  • 安亭热线
  • 新桥论坛
  • 上海列表网
  • 上海租房
  • 360免费杀毒
  • 上海房屋维修
  • 360网站导航
  • 南翔智地
  • 放心搜
  • 上海业主论
  • 安拓网络Anttoweb
  • 坛祥生活商
  • 城维沃珂网销联合办公