南翔生活网
  • 嘉定新闻
  • 精彩活动
  • 技术案例
  • 祥友汇
    • 儿童之家
    • 妇女之家
    • 志愿服务队
  • 党群微网站
  • 社区信息
  • 政策解读
嘉定生活门户网站,嘉定网络的商业平台
服务热线:021-69982177

南翔新闻

查看全部

【重磅快讯】嘉定起飞!现代化航天产业基地!即将开建!

12-23
8177
导读
- 2021年的第354天 - 嘉定明日天气:晴  13℃/3℃   嘉定再添重量级优质企业南翔生活网今日从嘉定规资局获悉 高博航空技术(上海)有限公司 将在嘉…

– 2021年的第354天 –

嘉定明日天气:晴  13℃/3℃

 

嘉定再添重量级优质企业
南翔生活网
今日从嘉定规资局获悉
高博航空技术(上海)有限公司
将在嘉定建设
现代化综合型航天产业基地
及高科技精密部件制造
目前,该项目规划许可正在公告
下面跟随小编
一起来看看这家优质企业
在嘉定即将开建的优质项目
项目效果图
高博航空技术(上海)有限公司
现代化综合型航天产业基地
及高科技精密部件制造
 

建设单位

高博航空技术(上海)有限公司
 

建设项目名称

现代化综合型航天产业基地及高科技精密部件制造

项目位置

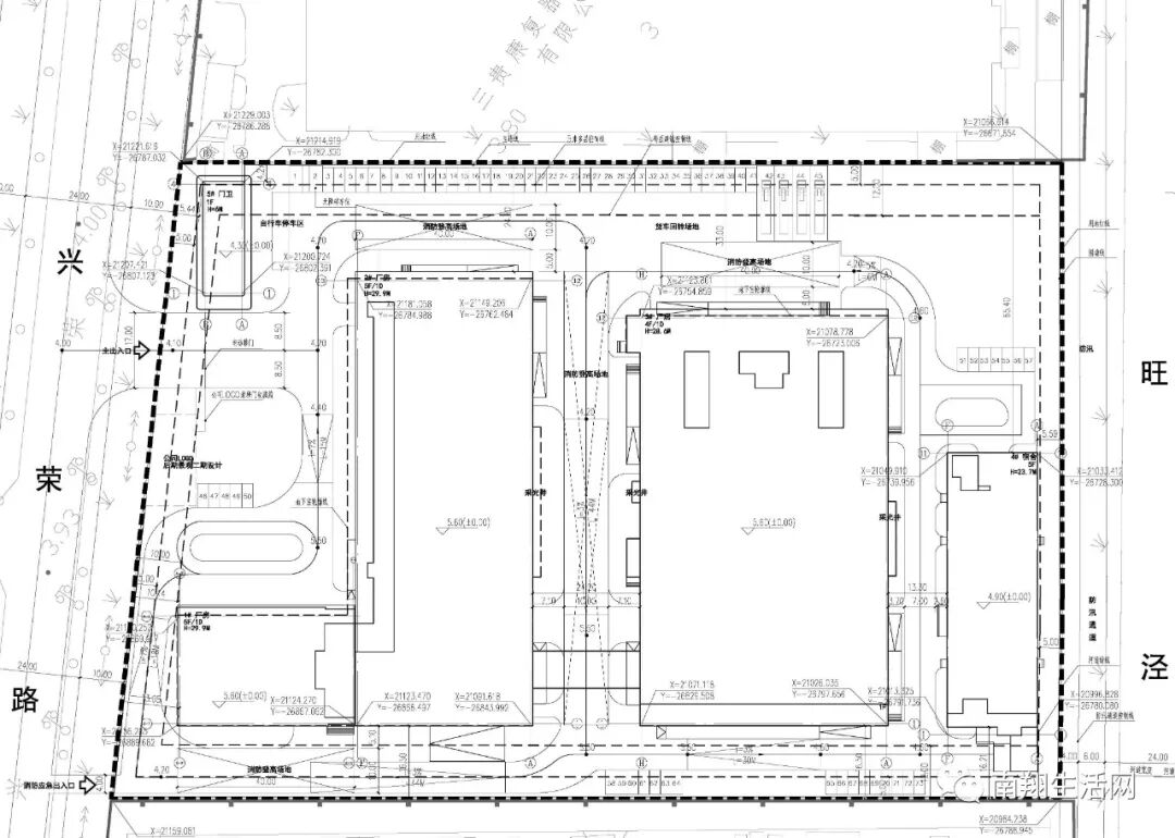
嘉定工业区
东至基地边界,南至旺泾河
西至基地边界,北至兴荣路
南翔生活网标注

建筑面积

总建筑面积64213.56平方米
其中地下建面10406.12平方米
计容建筑面积52935.3平方米
总平面图

地块经济指标

前期资料

今年2月,嘉定工业区2004号地块成功出让,根据规划,这里将建设一个现代化综合型的航空航天高科技产业基地。项目达产后预计每年可生产航空座椅系统及配套产品45万套,航空客舱系统及配套产品38万套,航空信息系统及配套产品15万套。
▲效果图
新建现代化综合型航空航天高科技产业基地,规划建设综合办公区(含活动、培训中心)、新产品研发和试验中心、试制和生产中心(含仓储),总建筑面积约56300平方米。
▲效果图
高博航空技术(上海)有限公司成立于2019年,致力于产品轻量化、非金属材料阻燃、精密加工件的变形预测与控制、动态体压下人体舒适度设计、复杂结构件的模块化加工等技术的创新突破。
通过“自主研发+行业资源整合+产学研”的研发模式,高博航空公司已与上海大学、上海应用技术大学及南昌航空大学等国内对口高等院校合作成立联合研发实验室,共同就新材料、新工艺、新制造技术等技术领域进行深度研发合作。

▲效果图

 

编辑 | 海潮

资料来源 | 嘉定规资局 上海嘉定

 
免责声明:本平台对转载、分享的内容、陈述、观点判断保持中立,仅供读者参考。本平台推送的广告信息、内容及设计均归广告主所有,本平台只作为发布方进行推送,因内容引起的任何纠纷与本平台无关,本公众平台将不承担任何责任。
                   
               

更多南翔精彩资讯,关注南翔生活网网官方微信

要闻快讯

查看全部
25号截止!这个帮扶项目征集抓紧申报!
【聚变计划】参与式工作坊开放报名
项目发布|2023年北京市妇联公益伙伴计划暨妇女儿童家庭公益服务创新项目征集启事
汪明亮:电子监控的犯罪预防功能
最美退役军人网络投票活动
古猗园荷花睡莲展荷花九景评选活动
嘉定区青少年法律知识新媒体竞答比赛
澳洲klook0元游澳洲
Student.com学旅家WorldCup世界杯

嘉定生活门户网站,嘉定网络的商业平台
服务热线:13916893730
技术支持:安拓网络Anttoweb
网站备案:沪ICP备13042283号-1
  • 网站介绍
  • 打折卡销售点
  • 服务条款
  • 招聘信息
  • 免责声明
  • 联系我们
  • 南翔派出所网上工作站
  • 模特衣架公司
  • 控件中国网
  • 闵行社区论坛
  • 嘉定都市网
  • 绍兴租房
  • 宝山网
  • 九亭论坛
  • 花桥生活网
  • 奉贤房产网
  • 上海团购大全
  • 申城热线
  • 上海鲜花
  • 南翔网
  • 南翔人论坛
  • 安亭热线
  • 新桥论坛
  • 上海列表网
  • 上海租房
  • 360免费杀毒
  • 上海房屋维修
  • 360网站导航
  • 南翔智地
  • 放心搜
  • 上海业主论
  • 安拓网络Anttoweb
  • 坛祥生活商
  • 城维沃珂网销联合办公