南翔生活网
  • 嘉定新闻
  • 精彩活动
  • 技术案例
  • 祥友汇
    • 儿童之家
    • 妇女之家
    • 志愿服务队
  • 党群微网站
  • 社区信息
  • 政策解读
嘉定生活门户网站,嘉定网络的商业平台
服务热线:021-69982177

南翔新闻

查看全部

【重磅快讯】嘉定交通枢纽核心区!酒店+住宅+办公最新规划出炉!

02-09
10609
导读
  - 2021年的第39天 -嘉定明日天气:多云 12℃/5℃前序:南翔生活网此前一直跟大家跟踪的嘉定安亭镇国际汽车城核心区02A-01A商住办地块项目又有新…
  – 2021年的第39天 –
嘉定明日天气:多云 12℃/5℃
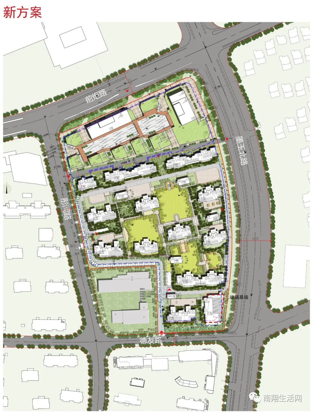
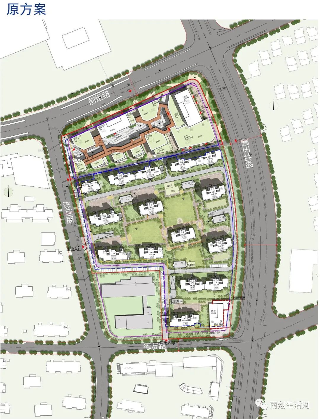
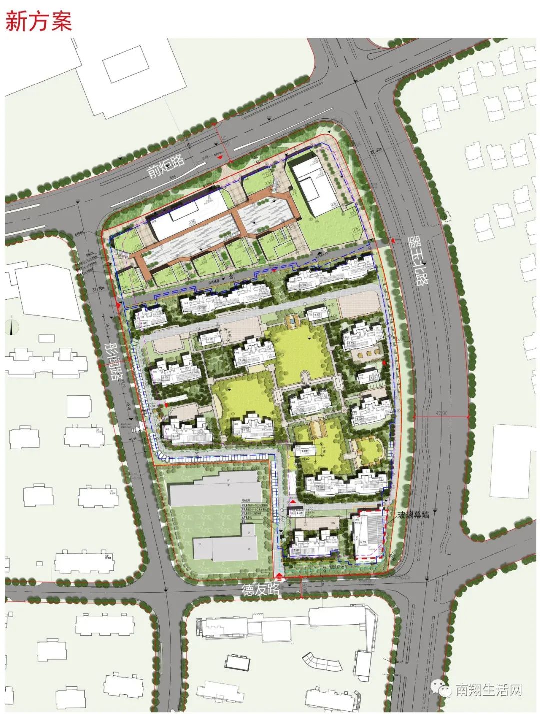
前序:南翔生活网此前一直跟大家跟踪的嘉定安亭镇国际汽车城核心区02A-01A商住办地块项目又有新进展了,这次嘉定规资局公布了该地块的调整方案。跟小编一起来看看吧~

安亭镇国际汽车城核心区02A-01A商住办地块项目

嘉定区安亭镇国际汽车城核心区02A-01A商住办地块项目位于上海市嘉定区安亭镇,属于嘉定安亭镇国际汽车城片区,东至墨玉北路,南至德友路,西至彤闻路,北至前炬路。

地块建设用地面积约53628.8平方米,住宅16-18层,商业(办公、酒店)为2-17层。
本项目是由上海奥汇置业有限公司开发,拟建住宅、商业(办公、酒店)、商业(办公、酒店)裙房,相关配套用房及设施。

调整内容

1. 26#楼酒店层数调整:酒店塔楼由12层增加至13层,满足酒店运营客房数规模。
 
2. 连廊调整:三层连廊调整为两层连廊,提升商业品质;
 
3. 24#楼办公楼女儿墙调整:办公塔楼层数不变,原女儿墙高度为1.2米,因屋顶有退台,机房有高度要求,故女儿墙整体高度为3.4米,保证建筑造型在街角界面的统一及完整;
 
4. 2#楼售楼处调整:售楼处屋顶方案原平屋顶增加屋顶格栅;
 
5.住宅地库轮廓调整:住宅地下车库根据车位布置调整地库外廓线。
该地块周边是上海东方肝胆医院,紧邻震川幼儿园,距离高铁安亭北站非常近,不论是医疗、教育还是交通都是非常便利的。

奥园金地格林云尚

该地块项目也就是南翔生活网此前给大家分享的奥园金地格林云尚,安亭镇02A-01A地块项目是上海奥汇置业有限公司(奥园集团)以底价154183万竞得,楼面价11500元/m²。(来源好地网)
据悉,该项目已经联合金地共同开发。
从本次公示的效果图来看,也显示了金地的标志。
↓
希望这个地块项目早日建成
嘉定早日增添一优质轨交住房!
 
 
编辑 | 晓舟
来源 | 嘉定规资局
 
 
免责声明:本平台对转载、分享的内容、陈述、观点判断保持中立,仅供读者参考。本平台推送的广告信息、内容及设计均归广告主所有,本平台只作为发布方进行推送,因内容引起的任何纠纷与本平台无关,本公众平台将不承担任何责任。


更多南翔精彩资讯,关注南翔生活网网官方微信

要闻快讯

查看全部
25号截止!这个帮扶项目征集抓紧申报!
【聚变计划】参与式工作坊开放报名
项目发布|2023年北京市妇联公益伙伴计划暨妇女儿童家庭公益服务创新项目征集启事
汪明亮:电子监控的犯罪预防功能
最美退役军人网络投票活动
古猗园荷花睡莲展荷花九景评选活动
嘉定区青少年法律知识新媒体竞答比赛
澳洲klook0元游澳洲
Student.com学旅家WorldCup世界杯

嘉定生活门户网站,嘉定网络的商业平台
服务热线:13916893730
技术支持:安拓网络Anttoweb
网站备案:沪ICP备13042283号-1
  • 网站介绍
  • 打折卡销售点
  • 服务条款
  • 招聘信息
  • 免责声明
  • 联系我们
  • 南翔派出所网上工作站
  • 模特衣架公司
  • 控件中国网
  • 闵行社区论坛
  • 嘉定都市网
  • 绍兴租房
  • 宝山网
  • 九亭论坛
  • 花桥生活网
  • 奉贤房产网
  • 上海团购大全
  • 申城热线
  • 上海鲜花
  • 南翔网
  • 南翔人论坛
  • 安亭热线
  • 新桥论坛
  • 上海列表网
  • 上海租房
  • 360免费杀毒
  • 上海房屋维修
  • 360网站导航
  • 南翔智地
  • 放心搜
  • 上海业主论
  • 安拓网络Anttoweb
  • 坛祥生活商
  • 城维沃珂网销联合办公