南翔生活网
  • 嘉定新闻
  • 精彩活动
  • 技术案例
  • 祥友汇
    • 儿童之家
    • 妇女之家
    • 志愿服务队
  • 党群微网站
  • 社区信息
  • 政策解读
嘉定生活门户网站,嘉定网络的商业平台
服务热线:021-69982177

南翔新闻

查看全部

【重磅】叠拼+高层+邻里中心!嘉定一重磅地块即将开建!房地联动价4.52万!

01-02
10836
导读
- 2022年的第02天 - 嘉定明日天气:晴转多云 14℃/5℃   南翔生活网 从嘉定规资局获悉 嘉定去年6月24日首批土拍的 最后一块纯宅地终获建工规许可…

– 2022年的第02天 –

嘉定明日天气:晴转多云 14℃/5℃

 

南翔生活网

从嘉定规资局获悉

嘉定去年6月24日首批土拍的

最后一块纯宅地终获建工规许可

即将开工!

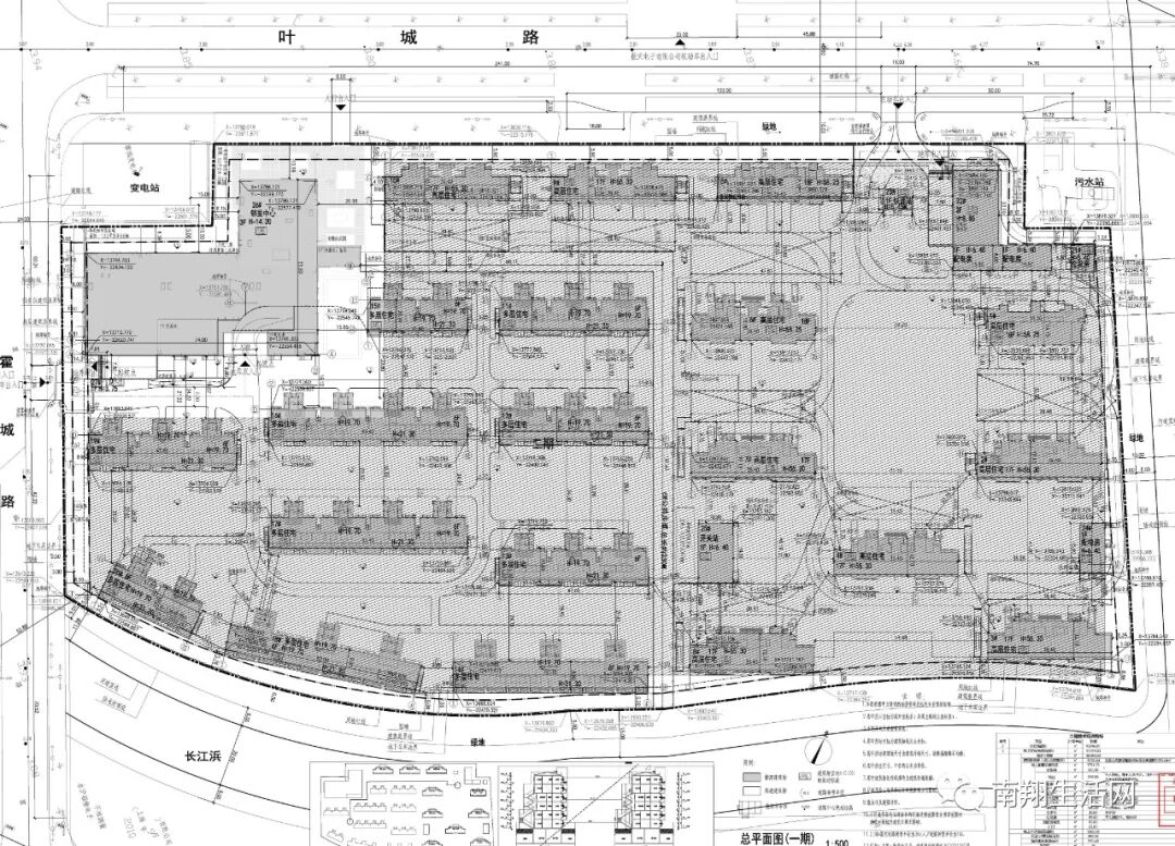
    本次公示的为金地(上海鑫荣诚房地产开发有限公司)嘉定南门住宅项目,这也是嘉定6.24三个拿地项目中,最后一个获得建工规许可的。     从公示信息看,本项目将分为两期开发,其中一期为邻里中心、二期为住宅和配套用房。  

项目地块

嘉定工业区南门社区

JDC1-0801单元62-03地块

项目四至

东至安泾,南至长江浜

西至霍城路,北至叶城路

建筑面积

 

总建筑面积52058.85平方米

(其中地下建面43899.2平方米)

计容建面7769.95平方米

 

 

一期:邻里中心

  根据公示资料,金地南门项目的一期将首先建设邻里中心。      

二期:住宅和配套设施

    二期的住宅为叠拼+高层,加配套设施共25栋建筑。  

 

主要指标

 

叠拼+高层:86490.34平方米

保障房:5053.24平方米

邻里中心:7340平方米

住宅户数(人口):902户(2525.6人)

车位:1060个

 

   

来源 | 嘉定规资局

编辑 | 海潮

 

免责声明:本平台对转载、分享的内容、陈述、观点判断保持中立,仅供读者参考。本平台推送的广告信息、内容及设计均归广告主所有,本平台只作为发布方进行推送,因内容引起的任何纠纷与本平台无关,本公众平台将不承担任何责任。

                   

               

更多南翔精彩资讯,关注南翔生活网网官方微信

要闻快讯

查看全部
25号截止!这个帮扶项目征集抓紧申报!
【聚变计划】参与式工作坊开放报名
项目发布|2023年北京市妇联公益伙伴计划暨妇女儿童家庭公益服务创新项目征集启事
汪明亮:电子监控的犯罪预防功能
最美退役军人网络投票活动
古猗园荷花睡莲展荷花九景评选活动
嘉定区青少年法律知识新媒体竞答比赛
澳洲klook0元游澳洲
Student.com学旅家WorldCup世界杯

嘉定生活门户网站,嘉定网络的商业平台
服务热线:13916893730
技术支持:安拓网络Anttoweb
网站备案:沪ICP备13042283号-1
  • 网站介绍
  • 打折卡销售点
  • 服务条款
  • 招聘信息
  • 免责声明
  • 联系我们
  • 南翔派出所网上工作站
  • 模特衣架公司
  • 控件中国网
  • 闵行社区论坛
  • 嘉定都市网
  • 绍兴租房
  • 宝山网
  • 九亭论坛
  • 花桥生活网
  • 奉贤房产网
  • 上海团购大全
  • 申城热线
  • 上海鲜花
  • 南翔网
  • 南翔人论坛
  • 安亭热线
  • 新桥论坛
  • 上海列表网
  • 上海租房
  • 360免费杀毒
  • 上海房屋维修
  • 360网站导航
  • 南翔智地
  • 放心搜
  • 上海业主论
  • 安拓网络Anttoweb
  • 坛祥生活商
  • 城维沃珂网销联合办公