南翔生活网
  • 嘉定新闻
  • 精彩活动
  • 技术案例
  • 祥友汇
    • 儿童之家
    • 妇女之家
    • 志愿服务队
  • 党群微网站
  • 社区信息
  • 政策解读
嘉定生活门户网站,嘉定网络的商业平台
服务热线:021-69982177

南翔新闻

查看全部

稀缺!嘉定河畔花园式独栋商业别墅!

03-22
19260
导读
  - 2021年的第79天 -嘉定明日天气:多云 15℃/3℃ 办公环境作为企业的名片,也是企业实力的一部分,企业管理者需要高大上的办公空间,员工也需要环境舒…
  – 2021年的第79天 –
嘉定明日天气:多云 15℃/3℃
 
办公环境作为企业的名片,也是企业实力的一部分,企业管理者需要高大上的办公空间,员工也需要环境舒适的办公场所。一个体面的办公环境能更好的接待客户商谈事宜,有效达成合作意向,这也会推动企业越来越具有创新力和发展活力。
 
在嘉定银南翔CBD商务中心
就有这样一个为企业量身定制的
独栋办公别墅!
便捷通往地铁11号线南翔站
配套周边商圈
花园式有氧办公

昌辉独栋商业别墅(一套)

房东诚意转让!

别墅总共地上4层+地下1层,配备私家电梯,标准层高3.3米(顶楼层高3米),高档大理石结合LOW-E幕墙外立面,配备地面花园。
 

有氧办公,花园式别墅

昌辉独栋商业别墅配套大花园,阳光铺满、窗明几净,真正的享受有氧办公,让精英们工作体验感大大增强。

远离钢筋与混凝土的压抑空间,在独栋办公别墅,摆脱传统办公环境的束缚,在办公之余,享受户外生态景观,亲近自然,每天拥有阳光般的正能量。
楼下宽阔大草坪,绿树成荫,花园外就是景观河流,流水潺潺,非常惬意。

办公别墅不仅仅是办公室,还可以是放松的庭院,庭院内植物繁茂,工作疲劳时在庭院转转。

银南翔CBD商务中心,交通便利

 

该商业别墅位于北虹桥综合商务区,周边交通非常便利,前往地铁11号线南翔站、高铁南翔北站以及未来嘉闵线南翔站(暂命名)、嘉闵高架都非常便利。

 

▲图为“十四五”规划纲要图解

商业配套齐全

 

周边商业配套也很齐全,附近有集休闲、娱乐、美食、购物等多功能于一体的世盟壹天地商业街、中冶祥腾城市广场等商业项目,能为入驻企业及员工提供时尚、丰富、便利的生活服务。

 

昌辉办公别墅群目前已吸引了许多优秀企业入驻,在这里,除了有高品质办公环境,企业在此还能相互协力,甚至找到更多的合作伙伴和商业机会。

高档办公空间,打造企业名片

昌辉独栋办公别墅更贴切企业的个性化需求。独栋办公别墅拥有独立的办公空间,企业可以根据自身需求,将企业文化、品牌精神、以及企业宣传推广等贯彻到方方面面,从而提升企业自身形象,创造出品牌效应。

 

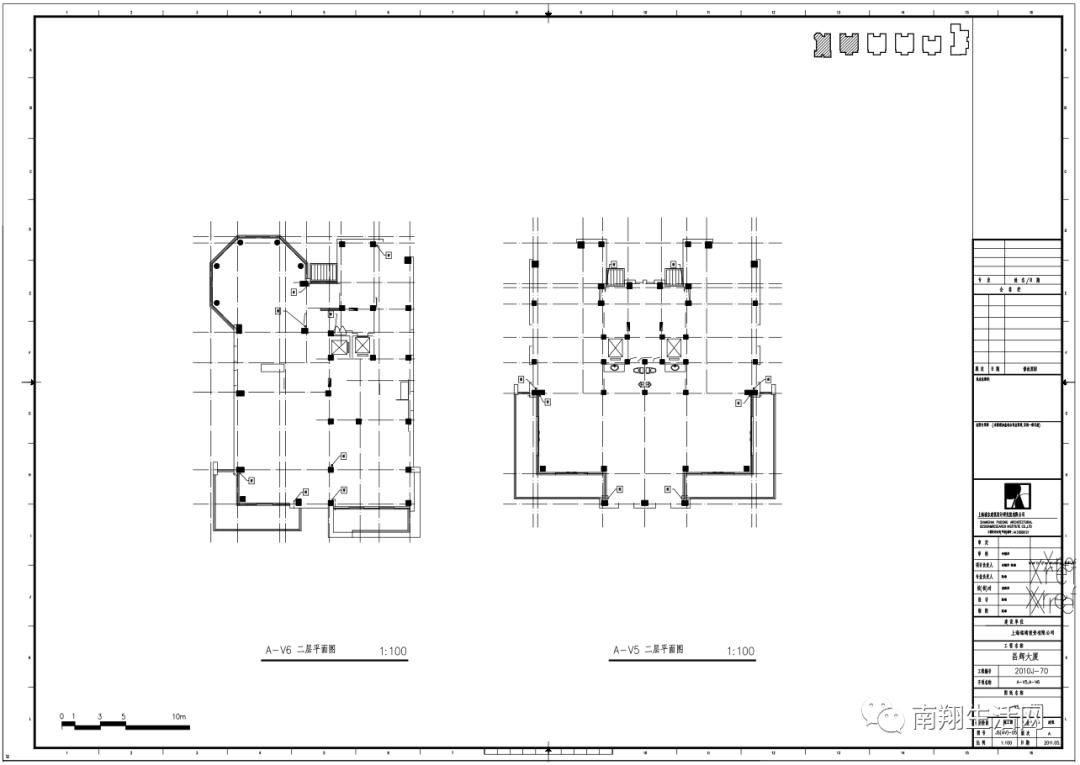
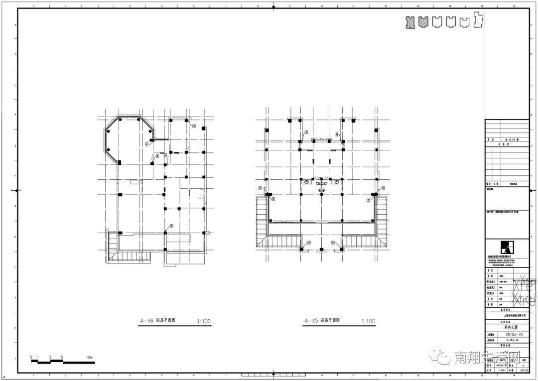
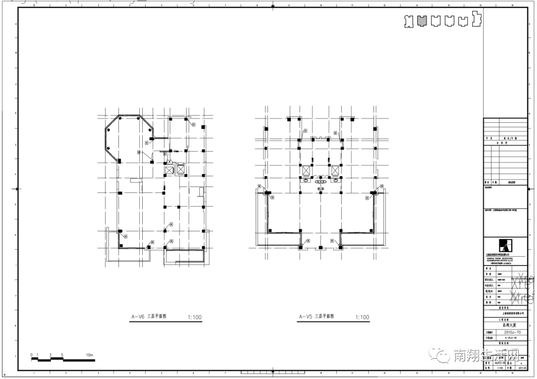
昌辉独栋别墅的平面图如下:
↓
 

▲一层平面图

 

▲二层平面图

 

▲三层平面图

 

▲四层平面图

 

▲地下一层平面图

 

该套昌辉独栋商业别墅

产证面积约建面1100m²

房东诚意出让

性价比高!

如有意向

可扫码预约看房

↓

 

温馨提示:本文为广告,本文文字和图片由本文商业别墅出让方提供,授权南翔生活网发布,并对此信息内容负责。

 

 

编辑 | 晓舟

部分图片 | 本文昌辉独栋商业别墅出让方

   
免责声明:本平台对转载、分享的内容、陈述、观点判断保持中立,仅供读者参考。本平台推送的广告信息、内容及设计均归广告主所有,本平台只作为发布方进行推送,因内容引起的任何纠纷与本平台无关,本公众平台将不承担任何责任。

更多南翔精彩资讯,关注南翔生活网网官方微信

要闻快讯

查看全部
25号截止!这个帮扶项目征集抓紧申报!
【聚变计划】参与式工作坊开放报名
项目发布|2023年北京市妇联公益伙伴计划暨妇女儿童家庭公益服务创新项目征集启事
汪明亮:电子监控的犯罪预防功能
最美退役军人网络投票活动
古猗园荷花睡莲展荷花九景评选活动
嘉定区青少年法律知识新媒体竞答比赛
澳洲klook0元游澳洲
Student.com学旅家WorldCup世界杯

嘉定生活门户网站,嘉定网络的商业平台
服务热线:13916893730
技术支持:安拓网络Anttoweb
网站备案:沪ICP备13042283号-1
  • 网站介绍
  • 打折卡销售点
  • 服务条款
  • 招聘信息
  • 免责声明
  • 联系我们
  • 南翔派出所网上工作站
  • 模特衣架公司
  • 控件中国网
  • 闵行社区论坛
  • 嘉定都市网
  • 绍兴租房
  • 宝山网
  • 九亭论坛
  • 花桥生活网
  • 奉贤房产网
  • 上海团购大全
  • 申城热线
  • 上海鲜花
  • 南翔网
  • 南翔人论坛
  • 安亭热线
  • 新桥论坛
  • 上海列表网
  • 上海租房
  • 360免费杀毒
  • 上海房屋维修
  • 360网站导航
  • 南翔智地
  • 放心搜
  • 上海业主论
  • 安拓网络Anttoweb
  • 坛祥生活商
  • 城维沃珂网销联合办公