南翔生活网
  • 嘉定新闻
  • 精彩活动
  • 技术案例
  • 祥友汇
    • 儿童之家
    • 妇女之家
    • 志愿服务队
  • 党群微网站
  • 社区信息
  • 政策解读
嘉定生活门户网站,嘉定网络的商业平台
服务热线:021-69982177

南翔新闻

查看全部

速度围观!建成后可增加30个班级!嘉定这个小学新建校区啦!

06-05
5376
导读
- 2020年的第156天 - 嘉定明日天气:中雨 26℃/20℃ 好消息! 近日,嘉定这所学校新建工程有新进展, 建成后可开设30个班级! 嘉定区城中路小学嘉…

– 2020年的第156天 –

嘉定明日天气:中雨 26℃/20℃

好消息!

近日,嘉定这所学校新建工程有新进展,

建成后可开设30个班级!

嘉定区城中路小学嘉定东校区新建工程
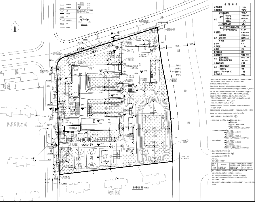
建筑位置

嘉定区城中路小学嘉定东校区

新建工程位于

嘉定区菊园新区双坪路266号,

东至新泾河,南至小区边界,

西至双坪路,北至顺宁路。

目前已完成结构基础施工。

△施工现场

建筑面积

总占地面积27589平方米,

学校建筑面积19570平方米,

建成后可开设30个班级。

△规划图

学校建筑由一栋E字形的教学楼

与一栋方形综合楼共2栋建筑单体组成,

学校主出入口位于双坪路。

△效果图

预计使用时间

据介绍,嘉定区城中路小学

嘉定东校区新建工程

自今年3月启动建设,

目前正在进行第一批PC构件的安装,

预计明年9月投入使用。

来源 | 上海嘉定

点击以下图片回顾精彩

   

更多南翔精彩资讯,关注南翔生活网网官方微信

要闻快讯

查看全部
25号截止!这个帮扶项目征集抓紧申报!
【聚变计划】参与式工作坊开放报名
项目发布|2023年北京市妇联公益伙伴计划暨妇女儿童家庭公益服务创新项目征集启事
汪明亮:电子监控的犯罪预防功能
最美退役军人网络投票活动
古猗园荷花睡莲展荷花九景评选活动
嘉定区青少年法律知识新媒体竞答比赛
澳洲klook0元游澳洲
Student.com学旅家WorldCup世界杯

嘉定生活门户网站,嘉定网络的商业平台
服务热线:13916893730
技术支持:安拓网络Anttoweb
网站备案:沪ICP备13042283号-1
  • 网站介绍
  • 打折卡销售点
  • 服务条款
  • 招聘信息
  • 免责声明
  • 联系我们
  • 南翔派出所网上工作站
  • 模特衣架公司
  • 控件中国网
  • 闵行社区论坛
  • 嘉定都市网
  • 绍兴租房
  • 宝山网
  • 九亭论坛
  • 花桥生活网
  • 奉贤房产网
  • 上海团购大全
  • 申城热线
  • 上海鲜花
  • 南翔网
  • 南翔人论坛
  • 安亭热线
  • 新桥论坛
  • 上海列表网
  • 上海租房
  • 360免费杀毒
  • 上海房屋维修
  • 360网站导航
  • 南翔智地
  • 放心搜
  • 上海业主论
  • 安拓网络Anttoweb
  • 坛祥生活商
  • 城维沃珂网销联合办公