南翔生活网
  • 嘉定新闻
  • 精彩活动
  • 技术案例
  • 祥友汇
    • 儿童之家
    • 妇女之家
    • 志愿服务队
  • 党群微网站
  • 社区信息
  • 政策解读
嘉定生活门户网站,嘉定网络的商业平台
服务热线:021-69982177

南翔新闻

查看全部

全球著名车企在嘉定新建研发大楼!最新进展来了!

06-25
18192
导读
          - 2021年的第172天 -嘉定明日天气:阴 30℃/23℃全球著名车企 沃尔沃汽车(中国)研发中心项目(三期)建设工程规划许可证和总平面…
          – 2021年的第172天 –
嘉定明日天气:阴 30℃/23℃
全球著名车企
沃尔沃汽车(中国)
研发中心项目(三期)
建设工程规划许可证
和总平面图已经公开!

 
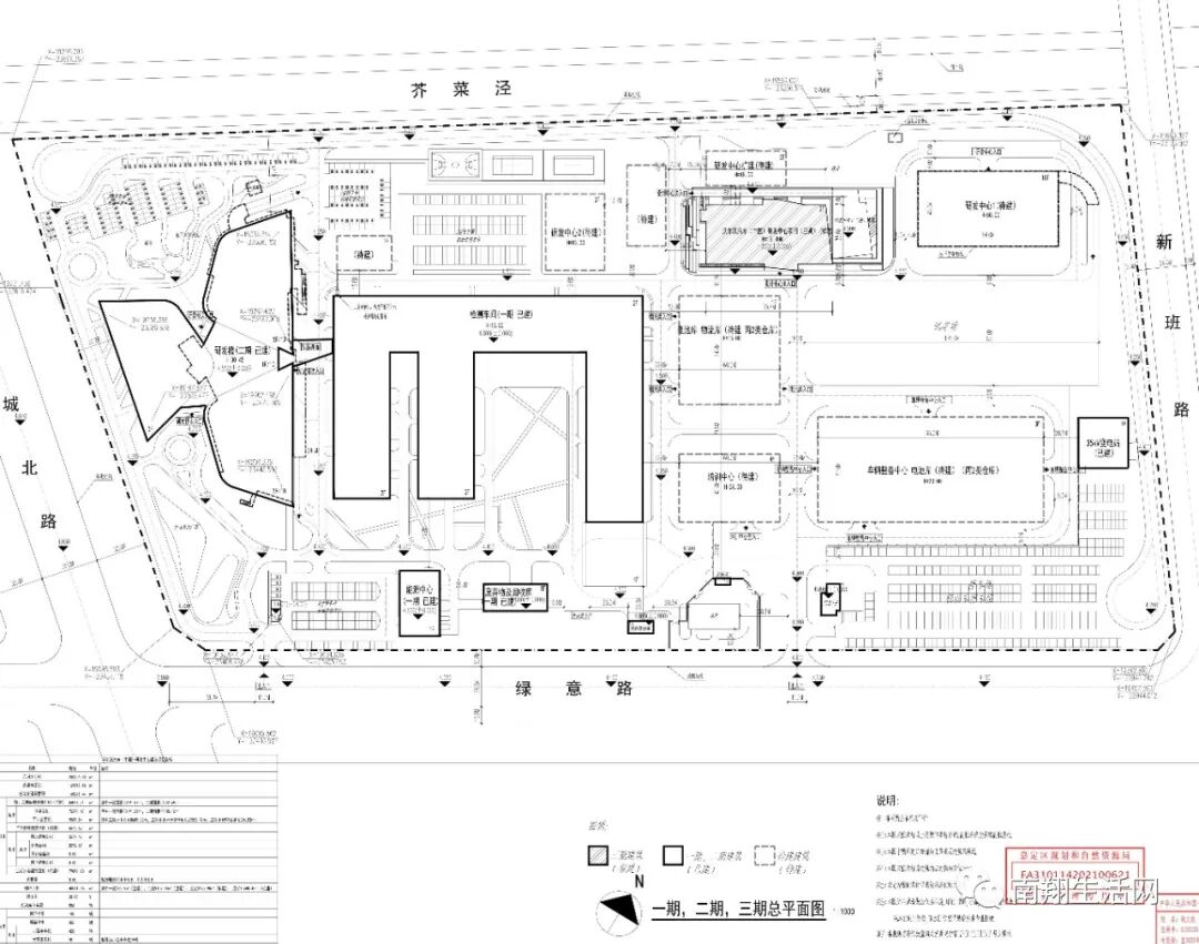
沃尔沃汽车(中国)研发中心项目(三期)
 
该项目建设单位是上海嘉尔沃有限公司,建设地址位于上海市嘉定区嘉定工业区,东至新班路,西至城北路,南至绿意路,北至荠菜泾。

 

 
建设项目指标
 
三期新建建筑面积(拟建)5572.67m²

 

此前该项目招标的时候,南翔生活网就给大家分享了相关情况。↓

 

(点击图片查看往期内容)

▲沃尔沃汽车(中国)研发中心透视图

效果图曝光
 

据前期内容,该工程总投资约9000万元人民币,施工工期240日历天。

沃尔沃汽车(中国)研发中心项目(三期)的内部设计效果图此前也已出炉,据悉,该项目是由同济大学建筑设计研究院(集团)有限公司设计。

↓

▲ 入口处

▲展厅

▲模型工作室

▲虚拟现实室

▲会议室

▲休息区

▲大空间研发室

沃尔沃前期项目介绍
 
2015年9月9日,沃尔沃汽车中国研发总部正式启用。一期工程建筑面积3.5万平方米,投资约4.2亿元。一期工程具有动力总成、底盘、电子电器系统,以及新能源和智能互联技术等方面的研发平台。上海研发中心是沃尔沃全球研发体系重要的一环,2015年,在中国研发生产的沃尔沃S60加长版首次出口到美国,开创了中国汽车工业史的先河。
位于嘉定工业区的沃尔沃汽车中国研发总部↑
2019年,沃尔沃汽车(中国)研发中心(二期)土建工程项目即沃尔沃汽车亚太总部办公大楼在嘉定正式落成启用,投资17亿!建设总面积为共5.1万平方米,相当于7.14个足球场面积(国际标准的足球场面积为7140平方米)。沃尔沃亚太总部大楼也是沃尔沃在瑞典以外最大的总部基地。
沃尔沃亚太总部的建筑设计也让人震撼。建筑由瑞典最大的建筑设计院Wingardhs完成概念设计,采用了斯堪的纳维亚的建筑风格,非常简约大气。
共同期待三期早日建成,
助力嘉定发展! 
 

编辑 | 晓舟

来源 | 嘉定规资局、南翔生活网前期资料

免责声明:本平台对转载、分享的内容、陈述、观点判断保持中立,仅供读者参考。本平台推送的广告信息、内容及设计均归广告主所有,本平台只作为发布方进行推送,因内容引起的任何纠纷与本平台无关,本公众平台将不承担任何责任。

更多南翔精彩资讯,关注南翔生活网网官方微信

要闻快讯

查看全部
25号截止!这个帮扶项目征集抓紧申报!
【聚变计划】参与式工作坊开放报名
项目发布|2023年北京市妇联公益伙伴计划暨妇女儿童家庭公益服务创新项目征集启事
汪明亮:电子监控的犯罪预防功能
最美退役军人网络投票活动
古猗园荷花睡莲展荷花九景评选活动
嘉定区青少年法律知识新媒体竞答比赛
澳洲klook0元游澳洲
Student.com学旅家WorldCup世界杯

嘉定生活门户网站,嘉定网络的商业平台
服务热线:13916893730
技术支持:安拓网络Anttoweb
网站备案:沪ICP备13042283号-1
  • 网站介绍
  • 打折卡销售点
  • 服务条款
  • 招聘信息
  • 免责声明
  • 联系我们
  • 南翔派出所网上工作站
  • 模特衣架公司
  • 控件中国网
  • 闵行社区论坛
  • 嘉定都市网
  • 绍兴租房
  • 宝山网
  • 九亭论坛
  • 花桥生活网
  • 奉贤房产网
  • 上海团购大全
  • 申城热线
  • 上海鲜花
  • 南翔网
  • 南翔人论坛
  • 安亭热线
  • 新桥论坛
  • 上海列表网
  • 上海租房
  • 360免费杀毒
  • 上海房屋维修
  • 360网站导航
  • 南翔智地
  • 放心搜
  • 上海业主论
  • 安拓网络Anttoweb
  • 坛祥生活商
  • 城维沃珂网销联合办公