南翔生活网
  • 嘉定新闻
  • 精彩活动
  • 技术案例
  • 祥友汇
    • 儿童之家
    • 妇女之家
    • 志愿服务队
  • 党群微网站
  • 社区信息
  • 政策解读
嘉定生活门户网站,嘉定网络的商业平台
服务热线:021-69982177

南翔新闻

查看全部

全国门店超1000家!中式快餐榜首品牌!华东总部落地嘉定!设计方案出炉!

12-15
20191
导读
- 2021年的第346天 - 嘉定明日天气:小雨 14℃/8℃ 南翔生活网从嘉定规资局获悉中式快餐榜首品牌老乡鸡华东总部大楼 即将实体落地嘉定  据小编了解,…

– 2021年的第346天 –

嘉定明日天气:小雨 14℃/8℃

南翔生活网从嘉定规资局获悉
中式快餐榜首品牌
老乡鸡
华东总部大楼

即将实体落地嘉定
 

据小编了解,老乡鸡是中国中式快餐的榜首品牌(《楚天都市报》报道),目前拥有超1000家门店!

  老乡鸡门头(网络配图)

按照2018年数据及2021年数据,老乡鸡高居全国中式快餐第一,中国整个快餐领域仅次于百胜、金拱门和汉堡王等世界快餐品牌,排名第四。目前,其年销售额高达30亿元人民币(央广网数据)。

《楚天都市报》配图及2021中国餐饮品类十大品牌年度盛典数据

日前,老乡鸡华东总部大楼已经确落地嘉定,目前正在项目公示,我们一起来看看。

嘉定规资局截屏

老乡鸡华东总部(嘉定)

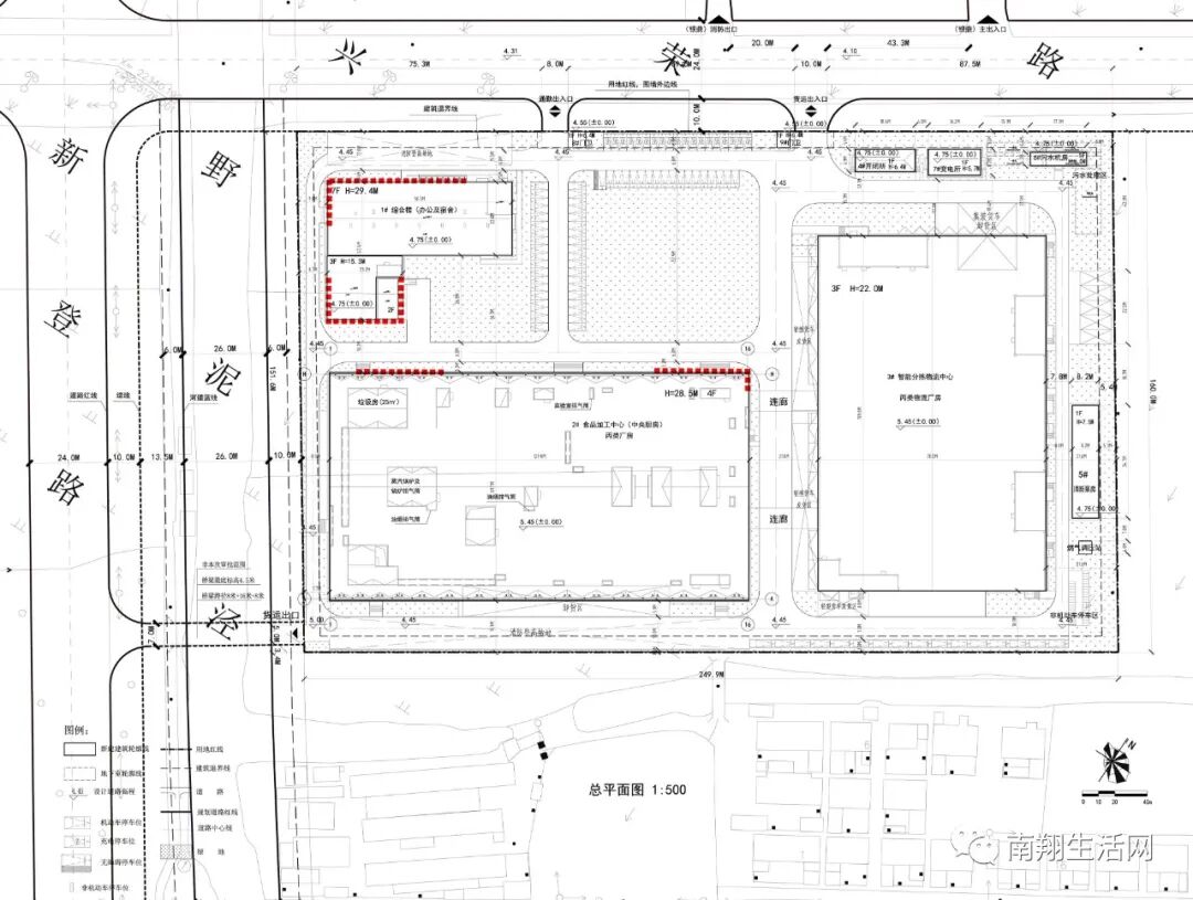
老乡鸡华东区域总部(嘉定)项目,总用地面积40024㎡ 。规划用地性质:工业用地。建设项目位于上海市嘉定工业区兴荣路以南,野泥泾以东。项目由老乡鸡(上海)餐饮有限公司建设,拟建一栋办公综合楼,一栋食品加工厂房,一栋物流分拣仓库以及配套设备用房。

建筑面积73354.71㎡。计容建筑面积71418.18㎡ ,玻璃幕墙面积2035.72㎡。

 

 

建设地点

 

嘉定工业区

兴荣路以南、野泥泾以东

老乡鸡华东总部大致区位(南翔生活网标注)

规划用地性质

工业用地

总平面图

总用地面积

40024㎡

项目概况

拟建一栋办公综合楼,一栋食品加工厂房

一栋物流分拣仓库以及配套设备用房

建筑面积73354.71㎡

计容建筑面积71418.18㎡

玻璃幕墙面积2035.72㎡

 

经济技术指标

 

 
 

项目效果图

 

 
来源 | 嘉定规资局、楚天都市报等
编辑 | 海潮
免责声明:本平台对转载、分享的内容、陈述、观点判断保持中立,仅供读者参考。本平台推送的广告信息、内容及设计均归广告主所有,本平台只作为发布方进行推送,因内容引起的任何纠纷与本平台无关,本公众平台将不承担任何责任。
                   
               

更多南翔精彩资讯,关注南翔生活网网官方微信

要闻快讯

查看全部
25号截止!这个帮扶项目征集抓紧申报!
【聚变计划】参与式工作坊开放报名
项目发布|2023年北京市妇联公益伙伴计划暨妇女儿童家庭公益服务创新项目征集启事
汪明亮:电子监控的犯罪预防功能
最美退役军人网络投票活动
古猗园荷花睡莲展荷花九景评选活动
嘉定区青少年法律知识新媒体竞答比赛
澳洲klook0元游澳洲
Student.com学旅家WorldCup世界杯

嘉定生活门户网站,嘉定网络的商业平台
服务热线:13916893730
技术支持:安拓网络Anttoweb
网站备案:沪ICP备13042283号-1
  • 网站介绍
  • 打折卡销售点
  • 服务条款
  • 招聘信息
  • 免责声明
  • 联系我们
  • 南翔派出所网上工作站
  • 模特衣架公司
  • 控件中国网
  • 闵行社区论坛
  • 嘉定都市网
  • 绍兴租房
  • 宝山网
  • 九亭论坛
  • 花桥生活网
  • 奉贤房产网
  • 上海团购大全
  • 申城热线
  • 上海鲜花
  • 南翔网
  • 南翔人论坛
  • 安亭热线
  • 新桥论坛
  • 上海列表网
  • 上海租房
  • 360免费杀毒
  • 上海房屋维修
  • 360网站导航
  • 南翔智地
  • 放心搜
  • 上海业主论
  • 安拓网络Anttoweb
  • 坛祥生活商
  • 城维沃珂网销联合办公