南翔生活网
  • 嘉定新闻
  • 精彩活动
  • 技术案例
  • 祥友汇
    • 儿童之家
    • 妇女之家
    • 志愿服务队
  • 党群微网站
  • 社区信息
  • 政策解读
嘉定生活门户网站,嘉定网络的商业平台
服务热线:021-69982177

南翔新闻

查看全部

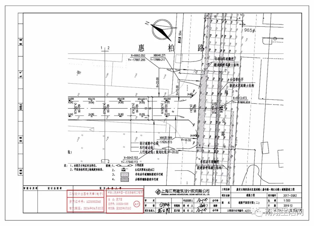
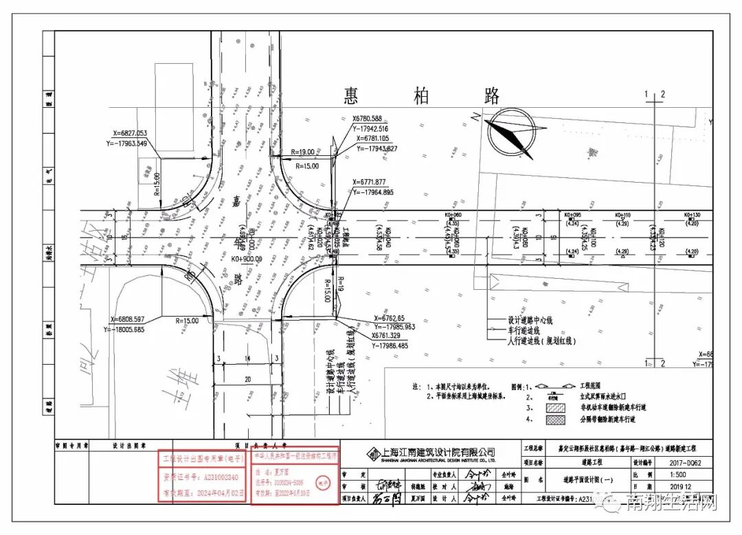
南翔大型居住区又将新建道路!出行更加方便

07-03
11187
导读
- 2020年的第184天 - 嘉定明日天气:阵雨 29℃/23℃ 规划许可公告   根据《中华人民共和国城乡规划法》、《上海城乡规划条例》等有关规定,现对【沪…

– 2020年的第184天 –

嘉定明日天气:阵雨 29℃/23℃

规划许可公告

 

根据《中华人民共和国城乡规划法》、《上海城乡规划条例》等有关规定,现对【沪嘉建(2020)FB310114202000101号】建设工程规划许可证及其总平面图进行公开。
公开起讫时间:即日起至本证许可建设内容竣工规划验收合格为止。

上海市嘉定区南翔镇人民政府

2020年6月12日

前期已经通车的云翔拓展社区惠柏路(胜辛南路-惠裕路)

来源 | 上海市嘉定区规划和自然资源局

点击以下图片回顾精彩

 

更多南翔精彩资讯,关注南翔生活网网官方微信

要闻快讯

查看全部
25号截止!这个帮扶项目征集抓紧申报!
【聚变计划】参与式工作坊开放报名
项目发布|2023年北京市妇联公益伙伴计划暨妇女儿童家庭公益服务创新项目征集启事
汪明亮:电子监控的犯罪预防功能
最美退役军人网络投票活动
古猗园荷花睡莲展荷花九景评选活动
嘉定区青少年法律知识新媒体竞答比赛
澳洲klook0元游澳洲
Student.com学旅家WorldCup世界杯

嘉定生活门户网站,嘉定网络的商业平台
服务热线:13916893730
技术支持:安拓网络Anttoweb
网站备案:沪ICP备13042283号-1
  • 网站介绍
  • 打折卡销售点
  • 服务条款
  • 招聘信息
  • 免责声明
  • 联系我们
  • 南翔派出所网上工作站
  • 模特衣架公司
  • 控件中国网
  • 闵行社区论坛
  • 嘉定都市网
  • 绍兴租房
  • 宝山网
  • 九亭论坛
  • 花桥生活网
  • 奉贤房产网
  • 上海团购大全
  • 申城热线
  • 上海鲜花
  • 南翔网
  • 南翔人论坛
  • 安亭热线
  • 新桥论坛
  • 上海列表网
  • 上海租房
  • 360免费杀毒
  • 上海房屋维修
  • 360网站导航
  • 南翔智地
  • 放心搜
  • 上海业主论
  • 安拓网络Anttoweb
  • 坛祥生活商
  • 城维沃珂网销联合办公