南翔生活网
  • 嘉定新闻
  • 精彩活动
  • 技术案例
  • 祥友汇
    • 儿童之家
    • 妇女之家
    • 志愿服务队
  • 党群微网站
  • 社区信息
  • 政策解读
嘉定生活门户网站,嘉定网络的商业平台
服务热线:021-69982177

南翔新闻

查看全部

【快讯】中国知名餐饮华东总部落户嘉定!即将开建!

05-17
14892
导读
  - 2021年的第133天 - 嘉定明日天气:阴 23℃/16℃   嘉定将新建一餐饮品牌华东总部! 餐饮品牌“老乡鸡”华东总部即将开建!建设工程规划许可证…

  – 2021年的第133天 –

嘉定明日天气:阴 23℃/16℃

 

嘉定将新建一餐饮品牌华东总部!

餐饮品牌“老乡鸡”华东总部
即将开建!
建设工程规划许可证和总平面图已出!
快来看看
↓

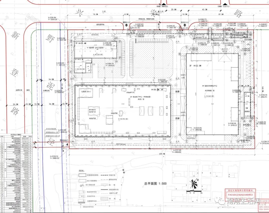
老乡鸡华东总部

该项目由老乡鸡(上海)餐饮有限公司建设
建设地址位于
嘉定区嘉定工业区
东至基地边界,南至基地边界
西至野泥泾,北至兴荣路

 

该项目总建筑面积73354.71平方米
(其中地下建筑面积76.18平方米)
计容建筑面积71418.18平方米

 

项目概况

项目主要包括1栋综合楼、1栋食品加工中心、1栋智能食品分拣物流中心、1栋智能分拣物流中心。项目拟建设“老乡鸡”华东区域总部,建成后将集产品精加工、仓储、配送、研发、培训、办公及互联网服务等功能为一体,并承载“老乡鸡”在上海门店的原料配送功能。

效果图

企业介绍:老乡鸡(上海)餐饮有限公司,系安徽老乡鸡餐饮有限公司全资子公司,公司成立于2019年4月。“老乡鸡”在安徽全省、湖北武汉、江苏南京拥有连锁门店600多家。
 

 

编辑 | 晓舟

来源 | 嘉定规资局、嘉定新闻

 

 

 

免责声明:本平台对转载、分享的内容、陈述、观点判断保持中立,仅供读者参考。本平台推送的广告信息、内容及设计均归广告主所有,本平台只作为发布方进行推送,因内容引起的任何纠纷与本平台无关,本公众平台将不承担任何责任。

更多南翔精彩资讯,关注南翔生活网网官方微信

要闻快讯

查看全部
25号截止!这个帮扶项目征集抓紧申报!
【聚变计划】参与式工作坊开放报名
项目发布|2023年北京市妇联公益伙伴计划暨妇女儿童家庭公益服务创新项目征集启事
汪明亮:电子监控的犯罪预防功能
最美退役军人网络投票活动
古猗园荷花睡莲展荷花九景评选活动
嘉定区青少年法律知识新媒体竞答比赛
澳洲klook0元游澳洲
Student.com学旅家WorldCup世界杯

嘉定生活门户网站,嘉定网络的商业平台
服务热线:13916893730
技术支持:安拓网络Anttoweb
网站备案:沪ICP备13042283号-1
  • 网站介绍
  • 打折卡销售点
  • 服务条款
  • 招聘信息
  • 免责声明
  • 联系我们
  • 南翔派出所网上工作站
  • 模特衣架公司
  • 控件中国网
  • 闵行社区论坛
  • 嘉定都市网
  • 绍兴租房
  • 宝山网
  • 九亭论坛
  • 花桥生活网
  • 奉贤房产网
  • 上海团购大全
  • 申城热线
  • 上海鲜花
  • 南翔网
  • 南翔人论坛
  • 安亭热线
  • 新桥论坛
  • 上海列表网
  • 上海租房
  • 360免费杀毒
  • 上海房屋维修
  • 360网站导航
  • 南翔智地
  • 放心搜
  • 上海业主论
  • 安拓网络Anttoweb
  • 坛祥生活商
  • 城维沃珂网销联合办公