南翔生活网
  • 嘉定新闻
  • 精彩活动
  • 技术案例
  • 祥友汇
    • 儿童之家
    • 妇女之家
    • 志愿服务队
  • 党群微网站
  • 社区信息
  • 政策解读
嘉定生活门户网站,嘉定网络的商业平台
服务热线:021-69982177

南翔新闻

查看全部

【快讯】涉及嘉定3所学校调整!最新规划来了!

07-22
4331
导读
- 2021年的第199天 - 嘉定明日天气:小雨 32℃/26℃@嘉定网友们北虹桥地区JDP0-1001单元22街坊规划将有局部调整快来一起看看吧01 规划范…
– 2021年的第199天 –
嘉定明日天气:小雨 32℃/26℃
@嘉定网友们
北虹桥地区JDP0-1001单元22街坊规划
将有局部调整
快来一起看看吧
01

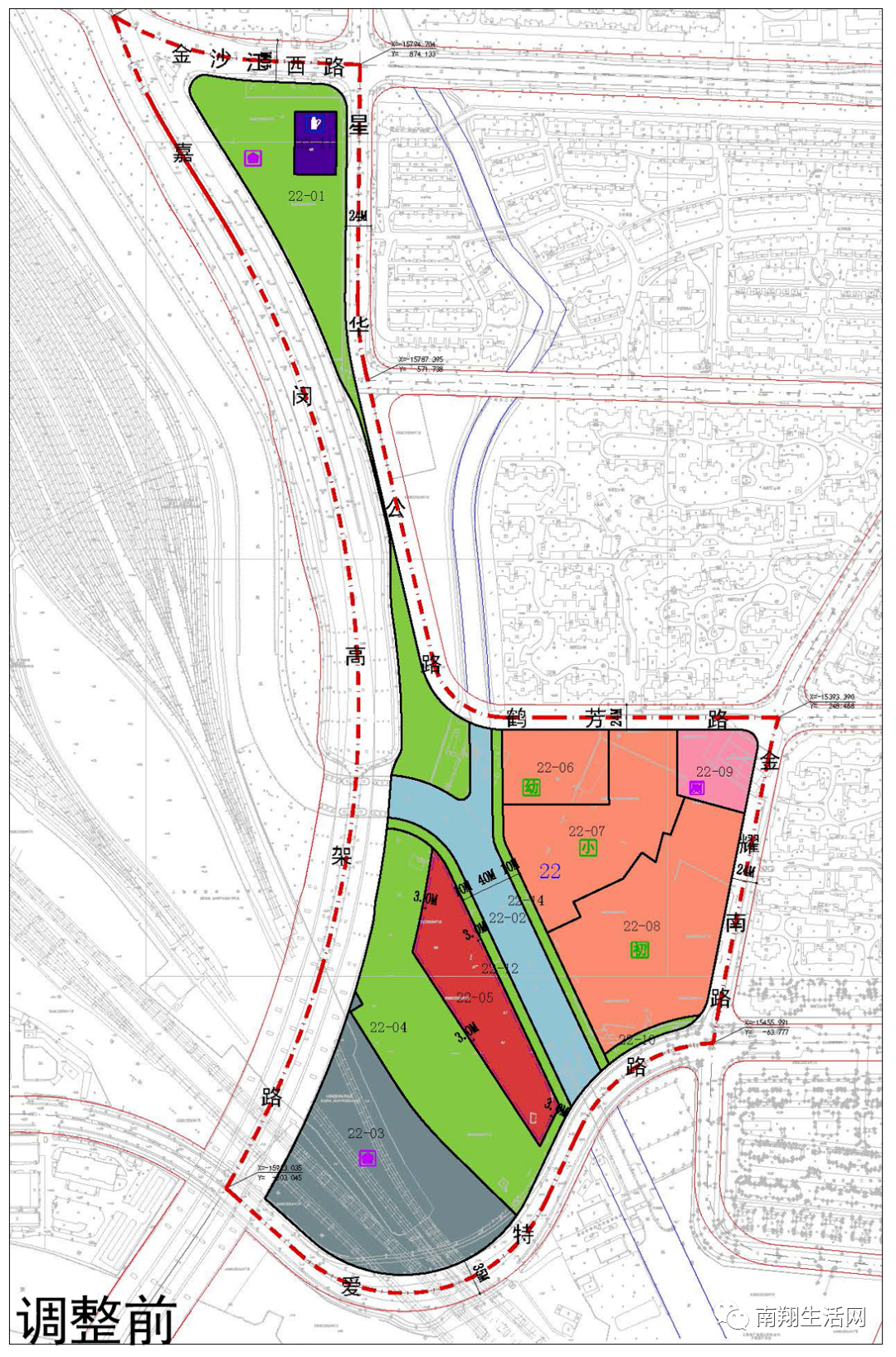
规划范围

 
本次规划调整范围位于上海市北虹桥地区,具体涉及北虹桥地区JDP0-1001单元22街坊,街坊范围东至星华公路-鹤芳路-金耀南路、南至爱特路、西至嘉闵高架路、北至金沙江西路,街坊用地面积约25.2公顷。
 
02

局部调整背景

 

《上海市北虹桥地区JDP0-1002、JDP0-1003单元控制性详细规划》于2014年编制完成并于同年经“沪府规[2014]13号”批复。

为满足地区学校建设的实际需求,拟对22街坊内的三所学校(初中、小学、幼儿园)及社区配套设施用地布局和用地功能进行优化调整。

03

局部调整内容

 

(1)22-06地块:用地性质仍为幼托用地(Rs6),用地面积调整为8456平方米,容积率1.0,建筑高度24米。

(2)22-07、22-08地块:22-07地块和22-08地块合并为一个地块,合并后地块编号为22-07地块,用地性质调整为九年一贯制学校用地(Rs5),用地面积调整为41483平方米,容积率1.5,建筑高度24米。

(3)22-09地块:地块内西侧、南侧增加一条6米宽的公共通道。

 

 

来源 | 嘉定规资局

免责声明:本平台对转载、分享的内容、陈述、观点判断保持中立,仅供读者参考。本平台推送的广告信息、内容及设计均归广告主所有,本平台只作为发布方进行推送,因内容引起的任何纠纷与本平台无关,本公众平台将不承担任何责任。

 

更多南翔精彩资讯,关注南翔生活网网官方微信

要闻快讯

查看全部
25号截止!这个帮扶项目征集抓紧申报!
【聚变计划】参与式工作坊开放报名
项目发布|2023年北京市妇联公益伙伴计划暨妇女儿童家庭公益服务创新项目征集启事
汪明亮:电子监控的犯罪预防功能
最美退役军人网络投票活动
古猗园荷花睡莲展荷花九景评选活动
嘉定区青少年法律知识新媒体竞答比赛
澳洲klook0元游澳洲
Student.com学旅家WorldCup世界杯

嘉定生活门户网站,嘉定网络的商业平台
服务热线:13916893730
技术支持:安拓网络Anttoweb
网站备案:沪ICP备13042283号-1
  • 网站介绍
  • 打折卡销售点
  • 服务条款
  • 招聘信息
  • 免责声明
  • 联系我们
  • 南翔派出所网上工作站
  • 模特衣架公司
  • 控件中国网
  • 闵行社区论坛
  • 嘉定都市网
  • 绍兴租房
  • 宝山网
  • 九亭论坛
  • 花桥生活网
  • 奉贤房产网
  • 上海团购大全
  • 申城热线
  • 上海鲜花
  • 南翔网
  • 南翔人论坛
  • 安亭热线
  • 新桥论坛
  • 上海列表网
  • 上海租房
  • 360免费杀毒
  • 上海房屋维修
  • 360网站导航
  • 南翔智地
  • 放心搜
  • 上海业主论
  • 安拓网络Anttoweb
  • 坛祥生活商
  • 城维沃珂网销联合办公