南翔生活网
  • 嘉定新闻
  • 精彩活动
  • 技术案例
  • 祥友汇
    • 儿童之家
    • 妇女之家
    • 志愿服务队
  • 党群微网站
  • 社区信息
  • 政策解读
嘉定生活门户网站,嘉定网络的商业平台
服务热线:021-69982177

南翔新闻

查看全部

【快讯】近13万平!共732户!嘉定这个商住综合体即将到来!

12-09
5581
导读
 - 2020年的第343天 -嘉定明日天气:多云 13℃/8℃  之前小编给大家分享过嘉定江桥北社区K1-01地块项目的设计方案(调整)。今日,该地…

 – 2020年的第343天 –
嘉定明日天气:多云 13℃/8℃
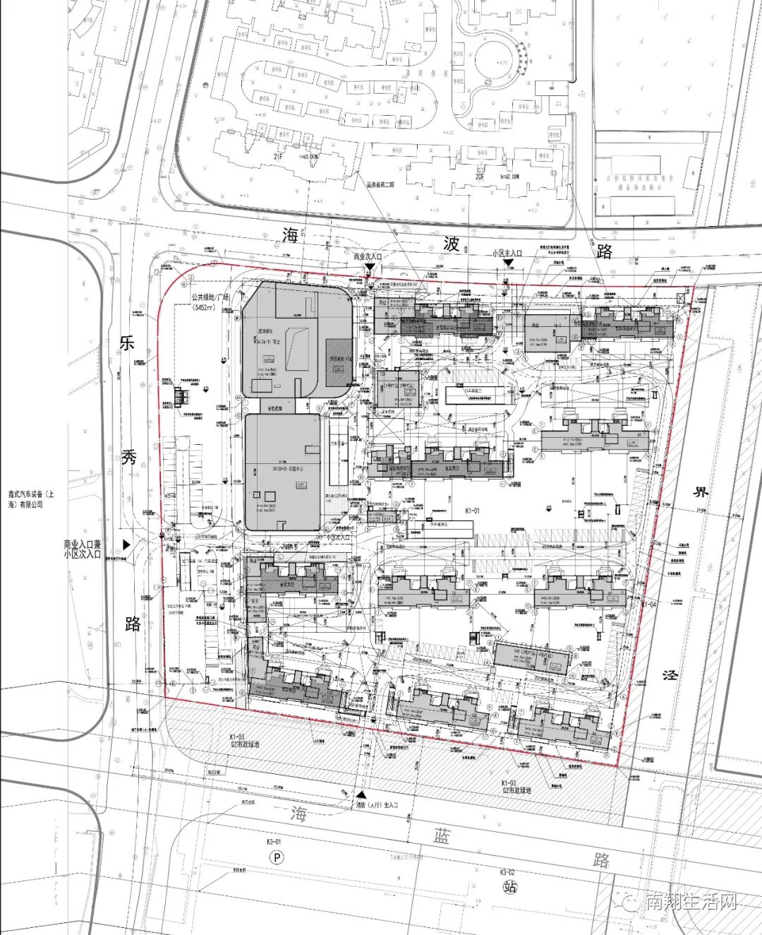
  之前小编给大家分享过嘉定江桥北社区K1-01地块项目的设计方案(调整)。今日,该地块建设工程规划许可证和总平面图已公开。  

嘉定江桥镇北社区K1-01地块项目

建设位置
嘉定江桥镇
东至界泾,西至乐秀路
南至海蓝路,北至海波路
 

以上划出位置仅供参考

 

用地性质
商住混合用地
建筑性质与功能
普通商品房、商业建筑
经济技术指标
规划用地面积为40330.70平方米,
总建筑面积为130662.750平方米,
地上总建筑面积为93862.75平方米
地上计容建筑面积为88727.540平方米
地下建筑面积为36800平方米
共732户住宅
 

编辑 | 晓舟

来源 | 嘉定规资局

 

免责声明:本平台对转载、分享的内容、陈述、观点判断保持中立,仅供读者参考。本平台推送的广告信息、内容及设计均归广告主所有,本平台只作为发布方进行推送,因内容引起的任何纠纷与本平台无关,本公众平台将不承担任何责任。


更多南翔精彩资讯,关注南翔生活网网官方微信

要闻快讯

查看全部
25号截止!这个帮扶项目征集抓紧申报!
【聚变计划】参与式工作坊开放报名
项目发布|2023年北京市妇联公益伙伴计划暨妇女儿童家庭公益服务创新项目征集启事
汪明亮:电子监控的犯罪预防功能
最美退役军人网络投票活动
古猗园荷花睡莲展荷花九景评选活动
嘉定区青少年法律知识新媒体竞答比赛
澳洲klook0元游澳洲
Student.com学旅家WorldCup世界杯

嘉定生活门户网站,嘉定网络的商业平台
服务热线:13916893730
技术支持:安拓网络Anttoweb
网站备案:沪ICP备13042283号-1
  • 网站介绍
  • 打折卡销售点
  • 服务条款
  • 招聘信息
  • 免责声明
  • 联系我们
  • 南翔派出所网上工作站
  • 模特衣架公司
  • 控件中国网
  • 闵行社区论坛
  • 嘉定都市网
  • 绍兴租房
  • 宝山网
  • 九亭论坛
  • 花桥生活网
  • 奉贤房产网
  • 上海团购大全
  • 申城热线
  • 上海鲜花
  • 南翔网
  • 南翔人论坛
  • 安亭热线
  • 新桥论坛
  • 上海列表网
  • 上海租房
  • 360免费杀毒
  • 上海房屋维修
  • 360网站导航
  • 南翔智地
  • 放心搜
  • 上海业主论
  • 安拓网络Anttoweb
  • 坛祥生活商
  • 城维沃珂网销联合办公