南翔生活网
  • 嘉定新闻
  • 精彩活动
  • 技术案例
  • 祥友汇
    • 儿童之家
    • 妇女之家
    • 志愿服务队
  • 党群微网站
  • 社区信息
  • 政策解读
嘉定生活门户网站,嘉定网络的商业平台
服务热线:021-69982177

南翔新闻

查看全部

【快讯】嘉定这所学校新建工程设计方案有调整!

06-22
2017
导读
  - 2021年的第169天 -嘉定明日天气:多云 31℃/21℃ @嘉定的宝爸宝妈,看过来 嘉定这所幼儿园新建工程设计方案有调整 详见↓ 建设工程名称嘉定新…

  – 2021年的第169天 –
嘉定明日天气:多云 31℃/21℃

@嘉定的宝爸宝妈,看过来

嘉定这所幼儿园新建工程设计方案有调整

详见↓

建设工程名称
嘉定新城中心区G03—6地块幼儿园新建工程
 
建设项目地址
嘉定区嘉定新城(马陆镇)
东至G03—7地块
西至G03—5地块
南至双单路(保利湖畔阳光西区北门对面)
北至G03—5地块
 
建设用地面积
7215.6平方米
 
用地规划性质
幼托用地
 
建设工程性质
幼儿园及其配套设施
 
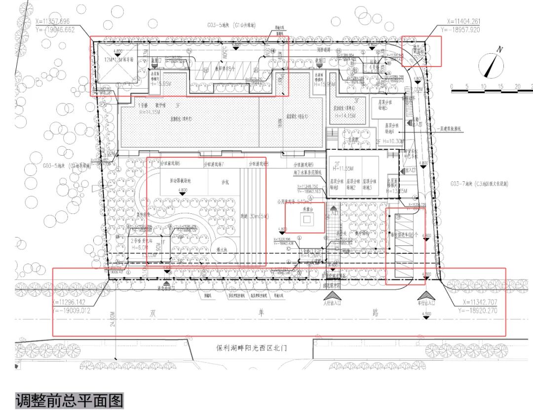
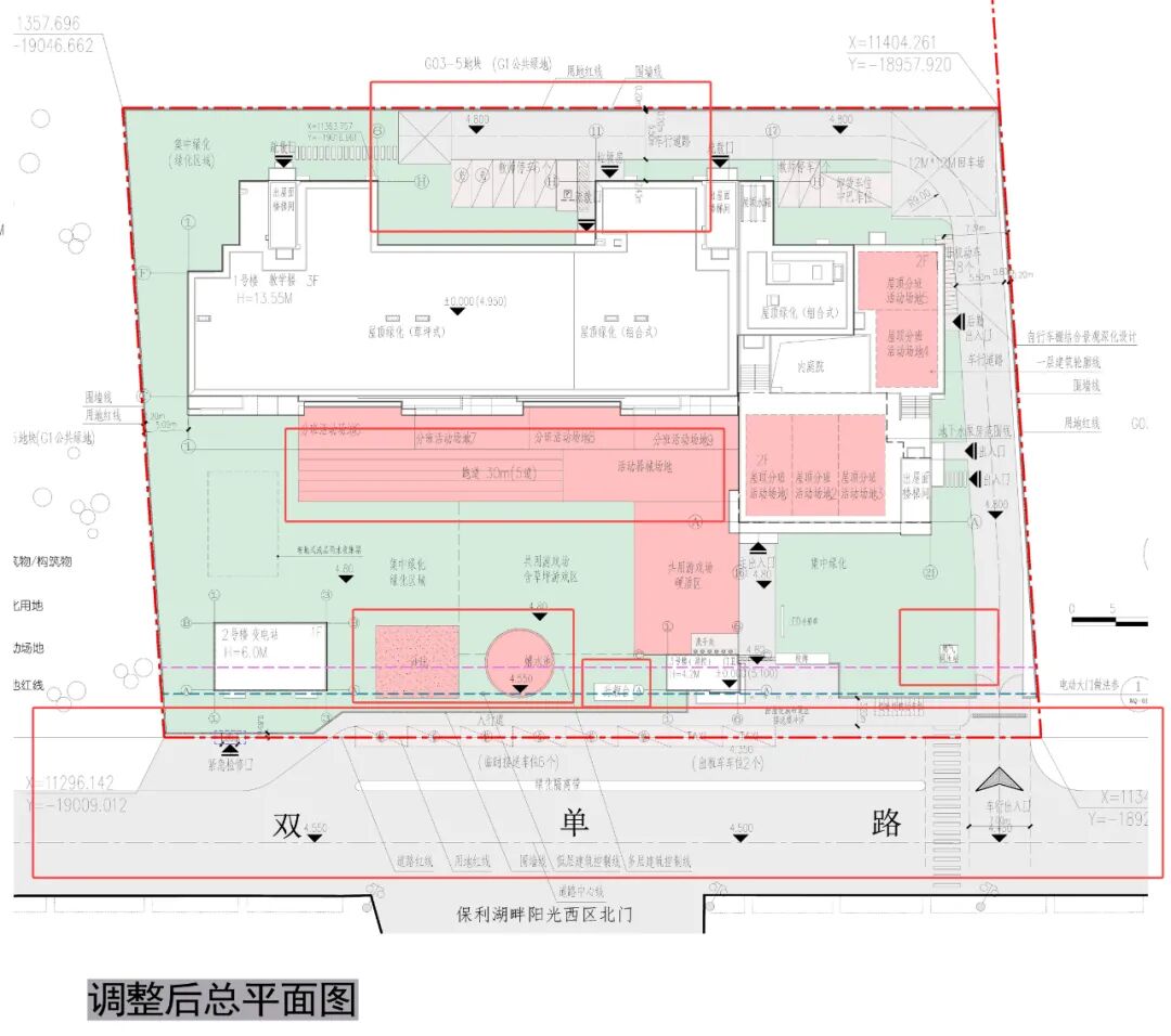
项目概况
项目总用地面积7215.6平方米,项目建成后为15个班级规模的幼儿园,设计总建筑面积6142.5平方米。拟建一幢3层幼儿园教学楼及其配套设施。建筑功能主要包括活动及辅助用房、办公及辅助用房和生活用房三部分以及室外活动场地等。地块西侧设有地下水泵房。
 
经济技术指标

 
修改内容
1、交警部门要求增加停车港湾,围墙位置局部调整,教师停车位调整。
2、园方要求沙坑、水池南移,跑道改为东西方向。
3、燃气调压站位置调整。
4、升旗台位置调整。
 

来源 | 上海嘉定

免责声明:本平台对转载、分享的内容、陈述、观点判断保持中立,仅供读者参考。本平台推送的广告信息、内容及设计均归广告主所有,本平台只作为发布方进行推送,因内容引起的任何纠纷与本平台无关,本公众平台将不承担任何责任。

更多南翔精彩资讯,关注南翔生活网网官方微信

要闻快讯

查看全部
25号截止!这个帮扶项目征集抓紧申报!
【聚变计划】参与式工作坊开放报名
项目发布|2023年北京市妇联公益伙伴计划暨妇女儿童家庭公益服务创新项目征集启事
汪明亮:电子监控的犯罪预防功能
最美退役军人网络投票活动
古猗园荷花睡莲展荷花九景评选活动
嘉定区青少年法律知识新媒体竞答比赛
澳洲klook0元游澳洲
Student.com学旅家WorldCup世界杯

嘉定生活门户网站,嘉定网络的商业平台
服务热线:13916893730
技术支持:安拓网络Anttoweb
网站备案:沪ICP备13042283号-1
  • 网站介绍
  • 打折卡销售点
  • 服务条款
  • 招聘信息
  • 免责声明
  • 联系我们
  • 南翔派出所网上工作站
  • 模特衣架公司
  • 控件中国网
  • 闵行社区论坛
  • 嘉定都市网
  • 绍兴租房
  • 宝山网
  • 九亭论坛
  • 花桥生活网
  • 奉贤房产网
  • 上海团购大全
  • 申城热线
  • 上海鲜花
  • 南翔网
  • 南翔人论坛
  • 安亭热线
  • 新桥论坛
  • 上海列表网
  • 上海租房
  • 360免费杀毒
  • 上海房屋维修
  • 360网站导航
  • 南翔智地
  • 放心搜
  • 上海业主论
  • 安拓网络Anttoweb
  • 坛祥生活商
  • 城维沃珂网销联合办公