南翔生活网
  • 嘉定新闻
  • 精彩活动
  • 技术案例
  • 祥友汇
    • 儿童之家
    • 妇女之家
    • 志愿服务队
  • 党群微网站
  • 社区信息
  • 政策解读
嘉定生活门户网站,嘉定网络的商业平台
服务热线:021-69982177

南翔新闻

查看全部

【快讯】嘉定南翔将新建商场!最新进展来了!

09-28
10439
导读
- 2021年的第268天 - 嘉定明日天气:小雨 33℃/21℃   嘉定南翔将新建一商业楼! 嘉定云翔大型居住社区29-07地块商业工程 规划许可公告已出炉…

– 2021年的第268天 –

嘉定明日天气:小雨 33℃/21℃

 

嘉定南翔将新建一商业楼!

嘉定云翔大型居住社区29-07地块商业工程

规划许可公告已出炉!

快来和小编一起看看!

 

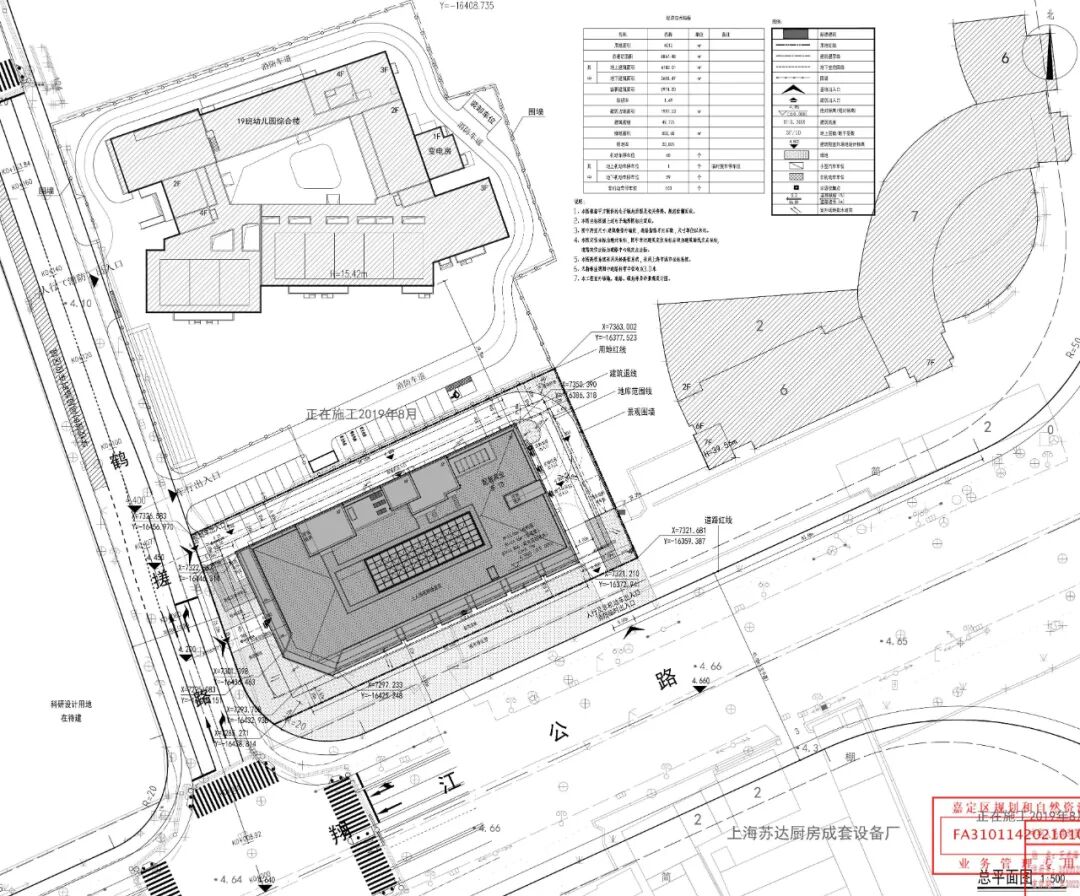
该项目建设地址为嘉定区南翔镇,东至基地边界,南至翔江公路,西至鹤槎路,北至云翔幼儿园。该项目建设单位是上海云翔置业有限公司。

 

总建筑面积8867.48平方米,

其中地下建筑面积为2685.47平方米,

机动车停车位60个。

  该商场周边的小区有翔瑞新苑、永乐公寓等,该商场建成后,将对周边居民的生活带来很大便利!   南翔生活网也分享过该项目此前的设计方案↓  
该项目北侧为云翔幼儿园,项目定位为社区配套商业设施,服务周边小区的居民。

关于上海云翔置业有限公司—嘉定云翔大型居住社区29-07地块商业工程设计方案的调整公示(图)

用地面积4013.22平方米,容积率1.5,地块编号29-07。
基地内设计一栋三层的商业楼,并设1层地下室。总建筑面积9036.77㎡;其中地上建筑面积6182.01㎡,地下建筑面积2854.76㎡。

该地块有4个封闭式住宅小区,距离最近的大型商业综合体1.3公里,步行需20多分钟,新商场的建成将极大方便周边社区居民的日常采购。

据悉,该项目预计今年三季度开工。

效果图

效果图

平面图

 

编辑|晓舟

来源|嘉定规资局

 

 

免责声明:本平台对转载、分享的内容、陈述、观点判断保持中立,仅供读者参考。本平台推送的广告信息、内容及设计均归广告主所有,本平台只作为发布方进行推送,因内容引起的任何纠纷与本平台无关,本公众平台将不承担任何责任。

                   

               

更多南翔精彩资讯,关注南翔生活网网官方微信

要闻快讯

查看全部
25号截止!这个帮扶项目征集抓紧申报!
【聚变计划】参与式工作坊开放报名
项目发布|2023年北京市妇联公益伙伴计划暨妇女儿童家庭公益服务创新项目征集启事
汪明亮:电子监控的犯罪预防功能
最美退役军人网络投票活动
古猗园荷花睡莲展荷花九景评选活动
嘉定区青少年法律知识新媒体竞答比赛
澳洲klook0元游澳洲
Student.com学旅家WorldCup世界杯

嘉定生活门户网站,嘉定网络的商业平台
服务热线:13916893730
技术支持:安拓网络Anttoweb
网站备案:沪ICP备13042283号-1
  • 网站介绍
  • 打折卡销售点
  • 服务条款
  • 招聘信息
  • 免责声明
  • 联系我们
  • 南翔派出所网上工作站
  • 模特衣架公司
  • 控件中国网
  • 闵行社区论坛
  • 嘉定都市网
  • 绍兴租房
  • 宝山网
  • 九亭论坛
  • 花桥生活网
  • 奉贤房产网
  • 上海团购大全
  • 申城热线
  • 上海鲜花
  • 南翔网
  • 南翔人论坛
  • 安亭热线
  • 新桥论坛
  • 上海列表网
  • 上海租房
  • 360免费杀毒
  • 上海房屋维修
  • 360网站导航
  • 南翔智地
  • 放心搜
  • 上海业主论
  • 安拓网络Anttoweb
  • 坛祥生活商
  • 城维沃珂网销联合办公