南翔生活网
  • 嘉定新闻
  • 精彩活动
  • 技术案例
  • 祥友汇
    • 儿童之家
    • 妇女之家
    • 志愿服务队
  • 党群微网站
  • 社区信息
  • 政策解读
嘉定生活门户网站,嘉定网络的商业平台
服务热线:021-69982177

南翔新闻

查看全部

【快讯】共717户!南翔大居最新住宅项目来了!

11-27
6416
导读
 - 2020年的第331天 -嘉定明日天气:阴 13℃/8℃  @嘉定人 嘉定这个动迁安置房即将开建! 嘉定区云翔拓展大居27A-02A地块新建住宅 建设工程…
 – 2020年的第331天 –
嘉定明日天气:阴 13℃/8℃
 

@嘉定人

嘉定这个动迁安置房即将开建!

嘉定区云翔拓展大居27A-02A地块新建住宅

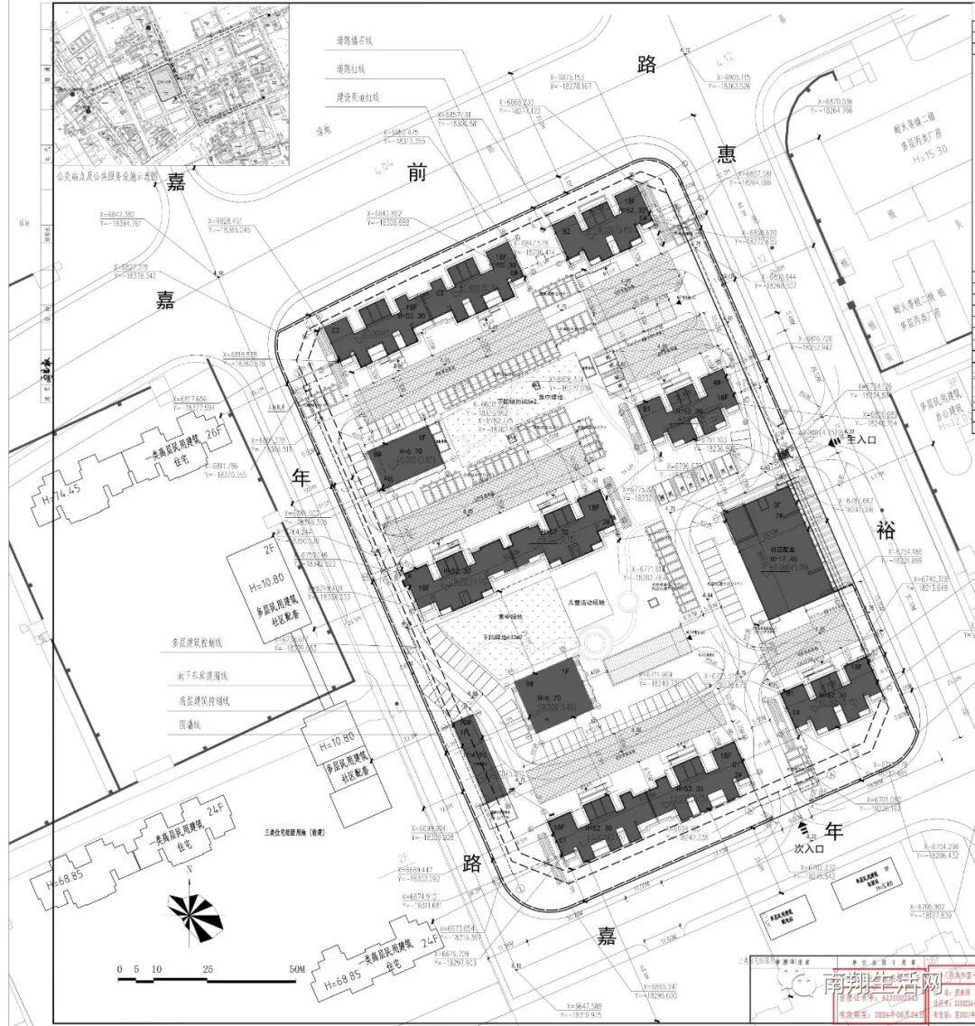
建设工程规划许可证和总平面图公开啦

建设单位

上海勋祥置业有限公司

建设项目名称

嘉定区云翔拓展大居
27A-02A地块共有产权房项目

建设位置

嘉定区南翔镇

东至惠裕路

南至嘉年路

西至嘉年路

北至嘉前路

建设规模

总建筑面积74121.72平方米
(其中地下建筑面积19859.91平方米)
计容建筑面积52375.14平方米
住宅总户数717户
机动车停车位594个

周边环境

从位置上来看,该地块的位置接近地铁站11号线陈翔路地铁站和马陆站,距离南翔北站也比较近,交通便利。

在日常生活方面,该地块附近有云翔超市、尚优玛特、易购超市等购物设施,方便居民外出采购。以及南翔印象城MEGA商场,购物非常方便。

在教育资源方面,南翔小学、嘉定区苏民学校、嘉定二中…囊括了各种年龄段孩子的教育需求。

前期设计方案公示图

 

编辑 | 晓舟

来源 | 嘉定规资局

 

 

免责声明:本平台对转载、分享的内容、陈述、观点判断保持中立,仅供读者参考。本平台推送的广告信息、内容及设计均归广告主所有,本平台只作为发布方进行推送,因内容引起的任何纠纷与本平台无关,本公众平台将不承担任何责任。


更多南翔精彩资讯,关注南翔生活网网官方微信

要闻快讯

查看全部
25号截止!这个帮扶项目征集抓紧申报!
【聚变计划】参与式工作坊开放报名
项目发布|2023年北京市妇联公益伙伴计划暨妇女儿童家庭公益服务创新项目征集启事
汪明亮:电子监控的犯罪预防功能
最美退役军人网络投票活动
古猗园荷花睡莲展荷花九景评选活动
嘉定区青少年法律知识新媒体竞答比赛
澳洲klook0元游澳洲
Student.com学旅家WorldCup世界杯

嘉定生活门户网站,嘉定网络的商业平台
服务热线:13916893730
技术支持:安拓网络Anttoweb
网站备案:沪ICP备13042283号-1
  • 网站介绍
  • 打折卡销售点
  • 服务条款
  • 招聘信息
  • 免责声明
  • 联系我们
  • 南翔派出所网上工作站
  • 模特衣架公司
  • 控件中国网
  • 闵行社区论坛
  • 嘉定都市网
  • 绍兴租房
  • 宝山网
  • 九亭论坛
  • 花桥生活网
  • 奉贤房产网
  • 上海团购大全
  • 申城热线
  • 上海鲜花
  • 南翔网
  • 南翔人论坛
  • 安亭热线
  • 新桥论坛
  • 上海列表网
  • 上海租房
  • 360免费杀毒
  • 上海房屋维修
  • 360网站导航
  • 南翔智地
  • 放心搜
  • 上海业主论
  • 安拓网络Anttoweb
  • 坛祥生活商
  • 城维沃珂网销联合办公