南翔生活网
  • 嘉定新闻
  • 精彩活动
  • 技术案例
  • 祥友汇
    • 儿童之家
    • 妇女之家
    • 志愿服务队
  • 党群微网站
  • 社区信息
  • 政策解读
嘉定生活门户网站,嘉定网络的商业平台
服务热线:021-69982177

南翔新闻

查看全部

【快讯】1680户住房!1300+停车位!嘉定这里即将新建共有产权保障房

08-13
4224
导读
- 2020年的第225天 -嘉定明日天气:多云 37℃/29℃  @嘉定的小伙伴们,看过来! 新的共有产权保障房项目来啦~ 位置在哪里?户数有多少?…

– 2020年的第225天 –
嘉定明日天气:多云 37℃/29℃
 

@嘉定的小伙伴们,看过来!

新的共有产权保障房项目来啦~

位置在哪里?
户数有多少?
配套怎么样?
别着急,小编一一来解答~

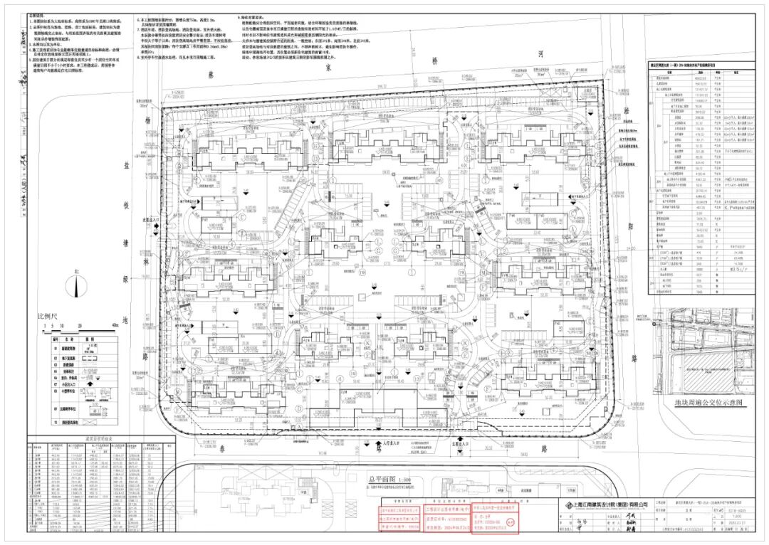
嘉定区黄渡大居(一期)09A-08地块

共有产权保障房项目

建设单位(个人)

上海隆鹏房地产开发有限公司

建设位置

嘉定区安亭镇
东至淞阳路,南至春塔路
西至杨林路,北至蔡家桥河

建设规模

总建筑面积159132.51平方米
(其中地下建筑面积37705.14平方米)
计容建筑面积117307.25平方米
机动车停车位共1371个
总户数1680户
其中,一房房型户数(50平方米)416户
二房房型户数(70平方米)1016户
三房房型户数(90平方米)248户
 

 

信息来源 | 上海嘉定

点击以下图片回顾精彩

更多南翔精彩资讯,关注南翔生活网网官方微信

要闻快讯

查看全部
25号截止!这个帮扶项目征集抓紧申报!
【聚变计划】参与式工作坊开放报名
项目发布|2023年北京市妇联公益伙伴计划暨妇女儿童家庭公益服务创新项目征集启事
汪明亮:电子监控的犯罪预防功能
最美退役军人网络投票活动
古猗园荷花睡莲展荷花九景评选活动
嘉定区青少年法律知识新媒体竞答比赛
澳洲klook0元游澳洲
Student.com学旅家WorldCup世界杯

嘉定生活门户网站,嘉定网络的商业平台
服务热线:13916893730
技术支持:安拓网络Anttoweb
网站备案:沪ICP备13042283号-1
  • 网站介绍
  • 打折卡销售点
  • 服务条款
  • 招聘信息
  • 免责声明
  • 联系我们
  • 南翔派出所网上工作站
  • 模特衣架公司
  • 控件中国网
  • 闵行社区论坛
  • 嘉定都市网
  • 绍兴租房
  • 宝山网
  • 九亭论坛
  • 花桥生活网
  • 奉贤房产网
  • 上海团购大全
  • 申城热线
  • 上海鲜花
  • 南翔网
  • 南翔人论坛
  • 安亭热线
  • 新桥论坛
  • 上海列表网
  • 上海租房
  • 360免费杀毒
  • 上海房屋维修
  • 360网站导航
  • 南翔智地
  • 放心搜
  • 上海业主论
  • 安拓网络Anttoweb
  • 坛祥生活商
  • 城维沃珂网销联合办公