南翔生活网
  • 嘉定新闻
  • 精彩活动
  • 技术案例
  • 祥友汇
    • 儿童之家
    • 妇女之家
    • 志愿服务队
  • 党群微网站
  • 社区信息
  • 政策解读
嘉定生活门户网站,嘉定网络的商业平台
服务热线:021-69982177

南翔新闻

查看全部

【快讯】13层综合大楼!嘉定又有一高新技术产业入驻!

10-20
11818
导读
 - 2020年的第293天 - 嘉定明日天气:多云转阴 22℃/17℃ 近日,小编了解到嘉定又将新建一高新技术产业入驻!设计方案已公示!规划总建筑面积4576…

 – 2020年的第293天 –

嘉定明日天气:多云转阴 22℃/17℃

近日,小编了解到嘉定又将新建一高新技术产业入驻!
设计方案已公示!
规划总建筑面积45761㎡!将建13层综合楼一栋!
快来看看具体情况吧!

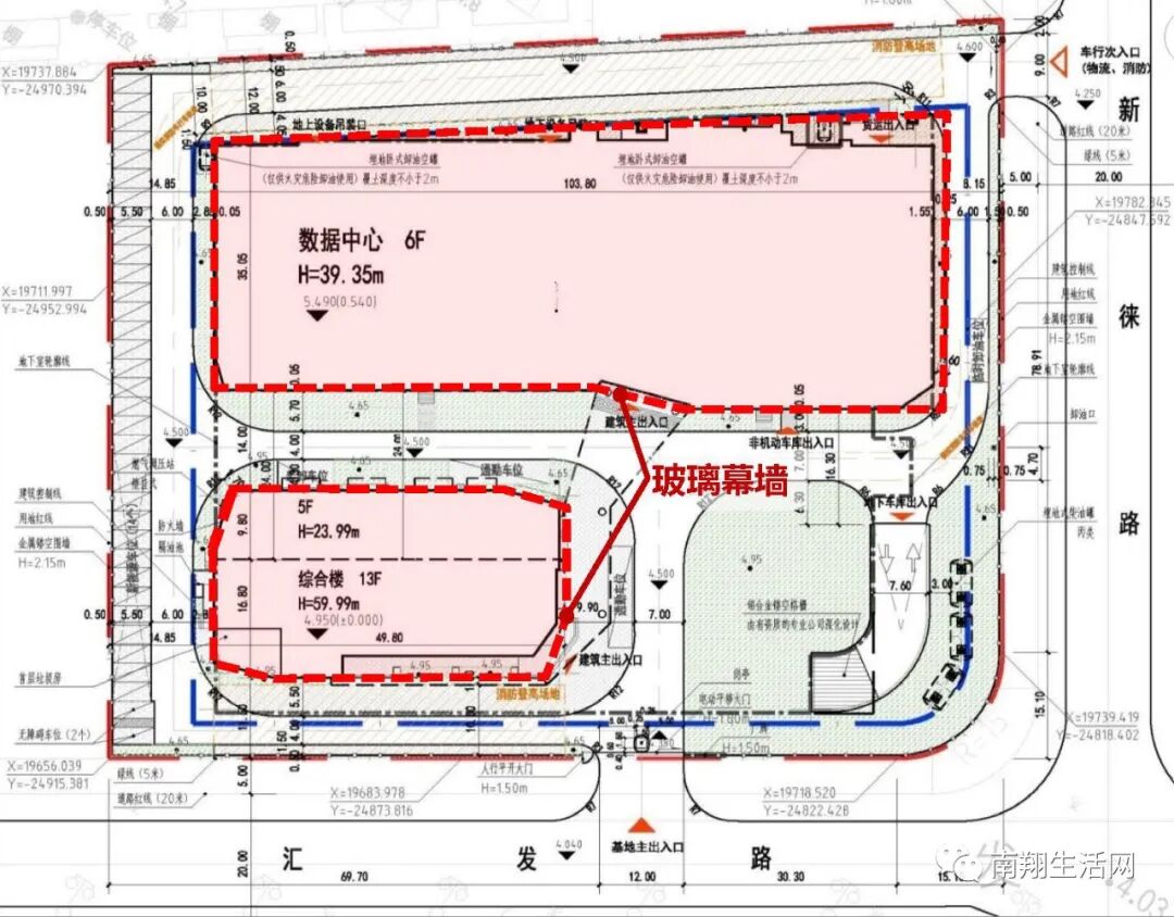
规划概况

 
点维通信总部和数据中心
选址于嘉定工业区1609号地块
东至新徕路,南至汇发路
西至基地边界,北至基地边界
总占地面积12882.1㎡

功能布局

拟建13层综合楼一栋
6层数据中心一栋
规划总建筑面积45761㎡
地上建筑面积37411㎡
地下建筑面积8350㎡
 

道路交通

基地设两个车行入口
分别位于汇发路及新徕路
内部设环形路网
共设135个机动车停车位
其中地上36个,地下99个

经济技术指标

编辑 | 晓舟
来源 | 嘉定规资局
 
 

更多南翔精彩资讯,关注南翔生活网网官方微信

要闻快讯

查看全部
25号截止!这个帮扶项目征集抓紧申报!
【聚变计划】参与式工作坊开放报名
项目发布|2023年北京市妇联公益伙伴计划暨妇女儿童家庭公益服务创新项目征集启事
汪明亮:电子监控的犯罪预防功能
最美退役军人网络投票活动
古猗园荷花睡莲展荷花九景评选活动
嘉定区青少年法律知识新媒体竞答比赛
澳洲klook0元游澳洲
Student.com学旅家WorldCup世界杯

嘉定生活门户网站,嘉定网络的商业平台
服务热线:13916893730
技术支持:安拓网络Anttoweb
网站备案:沪ICP备13042283号-1
  • 网站介绍
  • 打折卡销售点
  • 服务条款
  • 招聘信息
  • 免责声明
  • 联系我们
  • 南翔派出所网上工作站
  • 模特衣架公司
  • 控件中国网
  • 闵行社区论坛
  • 嘉定都市网
  • 绍兴租房
  • 宝山网
  • 九亭论坛
  • 花桥生活网
  • 奉贤房产网
  • 上海团购大全
  • 申城热线
  • 上海鲜花
  • 南翔网
  • 南翔人论坛
  • 安亭热线
  • 新桥论坛
  • 上海列表网
  • 上海租房
  • 360免费杀毒
  • 上海房屋维修
  • 360网站导航
  • 南翔智地
  • 放心搜
  • 上海业主论
  • 安拓网络Anttoweb
  • 坛祥生活商
  • 城维沃珂网销联合办公