南翔生活网
  • 嘉定新闻
  • 精彩活动
  • 技术案例
  • 祥友汇
    • 儿童之家
    • 妇女之家
    • 志愿服务队
  • 党群微网站
  • 社区信息
  • 政策解读
嘉定生活门户网站,嘉定网络的商业平台
服务热线:021-69982177

南翔新闻

查看全部

嘉定又一高档办公楼拔地而起!

08-06
7146
导读
- 2020年的第218天 -嘉定明日天气:小雨 35℃/27℃ 据南翔生活网了解,2020年8月5日,安亭镇107街坊14宗地块二期建造商办项目方案,具体如下…

– 2020年的第218天 –
嘉定明日天气:小雨 35℃/27℃

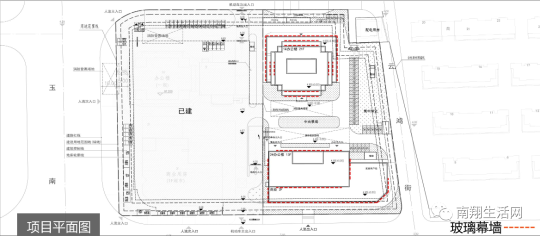
据南翔生活网了解,2020年8月5日,安亭镇107街坊14宗地块二期建造商办项目方案,具体如下:

 

地块名称

安亭镇107街坊14宗地块

地块公告号:暂未公布

投资建设方

本项目由西上海(集团)有限公司投资建设

地块信息

该地块东至云鸿路,南至南安路

西临墨玉南路,北至长耀路

规划用途:商业办公建筑 

建筑总面积:50801.6㎡

机动车停车位:374个

容积率:4.23

安亭镇107街坊14宗地块

从位置上来看,该地块的位置最接近的地铁站是11号线安亭地铁站,上下班方面暂时不需要担心。


配套设施

方案公示图

本项目为高层商业办公建筑,其中1#办公楼裙房2层,塔楼19层,共21层,楼高90米;2#办公楼裙房两层,塔楼11层,共13层,楼高58米。设有一层地下车库。

   

信息来源 | 嘉定规划资源局

点击以下图片回顾精彩
 

更多南翔精彩资讯,关注南翔生活网网官方微信

要闻快讯

查看全部
25号截止!这个帮扶项目征集抓紧申报!
【聚变计划】参与式工作坊开放报名
项目发布|2023年北京市妇联公益伙伴计划暨妇女儿童家庭公益服务创新项目征集启事
汪明亮:电子监控的犯罪预防功能
最美退役军人网络投票活动
古猗园荷花睡莲展荷花九景评选活动
嘉定区青少年法律知识新媒体竞答比赛
澳洲klook0元游澳洲
Student.com学旅家WorldCup世界杯

嘉定生活门户网站,嘉定网络的商业平台
服务热线:13916893730
技术支持:安拓网络Anttoweb
网站备案:沪ICP备13042283号-1
  • 网站介绍
  • 打折卡销售点
  • 服务条款
  • 招聘信息
  • 免责声明
  • 联系我们
  • 南翔派出所网上工作站
  • 模特衣架公司
  • 控件中国网
  • 闵行社区论坛
  • 嘉定都市网
  • 绍兴租房
  • 宝山网
  • 九亭论坛
  • 花桥生活网
  • 奉贤房产网
  • 上海团购大全
  • 申城热线
  • 上海鲜花
  • 南翔网
  • 南翔人论坛
  • 安亭热线
  • 新桥论坛
  • 上海列表网
  • 上海租房
  • 360免费杀毒
  • 上海房屋维修
  • 360网站导航
  • 南翔智地
  • 放心搜
  • 上海业主论
  • 安拓网络Anttoweb
  • 坛祥生活商
  • 城维沃珂网销联合办公