南翔生活网
  • 嘉定新闻
  • 精彩活动
  • 技术案例
  • 祥友汇
    • 儿童之家
    • 妇女之家
    • 志愿服务队
  • 党群微网站
  • 社区信息
  • 政策解读
嘉定生活门户网站,嘉定网络的商业平台
服务热线:021-69982177

南翔新闻

查看全部

刚刚!终于来了!华东师范大学第五附属学校方案出炉!南翔这个新建学校也有调整!

11-24
18583
导读
- 2021年的第325天 - 嘉定明日天气:晴 16℃/8℃ 今日,南翔生活网小编从嘉定规资局获悉嘉定人热切期盼的2所学校华东师范大学第五附属学校 南翔惠亚路…

– 2021年的第325天 –

嘉定明日天气:晴 16℃/8℃

今日,南翔生活网小编
从嘉定规资局获悉
嘉定人热切期盼的2所学校
华东师范大学第五附属学校
南翔惠亚路中学
新建工程
方案、调规许可正式出炉
正在公示中!
 

01

华东师范大学第五附属学校新建工程方案

建设项目地址

东临启源路,南临唐家浜
西临启宁路,北临树屏东路
方案公示平面图(点击小图查看大图)

建设用地面积

55798.7㎡

规划用地性质

基础教育设施用地

建设工程性质

中小学

项目概况

项目设计总面积:56560.42㎡。
小学部 :教学组团由北向南依次是食堂风雨操场、专业教室、普通教学用房,且间距满足要求。邻近运动场地一侧布置办公用房、生活服务用房等,场地东侧为200M环形跑道和两片排球场,一片篮球场。
初中部 :教学组团由北向南依次是食堂风雨操场、大报告厅、普通教学用房,且间距满足要求。邻近运动场地一侧布置办公用房、专业教室等,场地西侧为300M环形跑道和四片排球场,两片篮球场。

经济技术指标

02

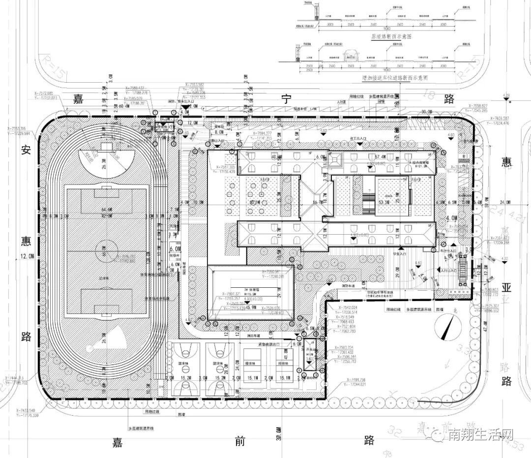
惠亚路中学新建工程(调整)规划许可

今日,嘉定规资局也发布了惠亚路中学新建工程(调整)规划许可公告。
 

总平面图如下

总平面图(点击小图查看大图)

前期资料

惠亚路新建学校工程东至惠亚路、南至嘉前路、西至安惠路、北至嘉宁路,用地面积30196.5平方米,总建筑面积20520.4平方米,办学规模为30个班级。
惠亚路新建学校外立面设计为仿红砖饰面,配以白色装饰线条,整体风格古朴典雅、稳重大气。
效果图↑
室内设计简洁明快,以白色为主色调,局部亮色点缀,使得整体空间更通透明亮。图书室、体育馆等活动空间的设计兼顾人性化和趣味性,生活空间则简洁、贴心,为学生打造“家一样温馨”的学习环境。
惠亚路新建学校工程将于2022年5月竣工。
来源 | 嘉定区规资局、上海嘉定
编辑 | 清风
免责声明:本平台对转载、分享的内容、陈述、观点判断保持中立,仅供读者参考。本平台推送的广告信息、内容及设计均归广告主所有,本平台只作为发布方进行推送,因内容引起的任何纠纷与本平台无关,本公众平台将不承担任何责任。
                   
               

更多南翔精彩资讯,关注南翔生活网网官方微信

要闻快讯

查看全部
25号截止!这个帮扶项目征集抓紧申报!
【聚变计划】参与式工作坊开放报名
项目发布|2023年北京市妇联公益伙伴计划暨妇女儿童家庭公益服务创新项目征集启事
汪明亮:电子监控的犯罪预防功能
最美退役军人网络投票活动
古猗园荷花睡莲展荷花九景评选活动
嘉定区青少年法律知识新媒体竞答比赛
澳洲klook0元游澳洲
Student.com学旅家WorldCup世界杯

嘉定生活门户网站,嘉定网络的商业平台
服务热线:13916893730
技术支持:安拓网络Anttoweb
网站备案:沪ICP备13042283号-1
  • 网站介绍
  • 打折卡销售点
  • 服务条款
  • 招聘信息
  • 免责声明
  • 联系我们
  • 南翔派出所网上工作站
  • 模特衣架公司
  • 控件中国网
  • 闵行社区论坛
  • 嘉定都市网
  • 绍兴租房
  • 宝山网
  • 九亭论坛
  • 花桥生活网
  • 奉贤房产网
  • 上海团购大全
  • 申城热线
  • 上海鲜花
  • 南翔网
  • 南翔人论坛
  • 安亭热线
  • 新桥论坛
  • 上海列表网
  • 上海租房
  • 360免费杀毒
  • 上海房屋维修
  • 360网站导航
  • 南翔智地
  • 放心搜
  • 上海业主论
  • 安拓网络Anttoweb
  • 坛祥生活商
  • 城维沃珂网销联合办公