南翔生活网
  • 嘉定新闻
  • 精彩活动
  • 技术案例
  • 祥友汇
    • 儿童之家
    • 妇女之家
    • 志愿服务队
  • 党群微网站
  • 社区信息
  • 政策解读
嘉定生活门户网站,嘉定网络的商业平台
服务热线:021-69982177

南翔新闻

查看全部

【独家重磅】挂牌!上海世外教育附属云翔小学来了!

08-21
19670
导读
- 2022年的第230天 -嘉定明日天气 多云 30℃-29℃上周,南翔生活网在《上海市宋校嘉定实验学校挂牌南翔惠亚路中学?!要落户南翔?》一文中,预测上海世…
– 2022年的第230天 –
嘉定明日天气 多云 30℃-29℃
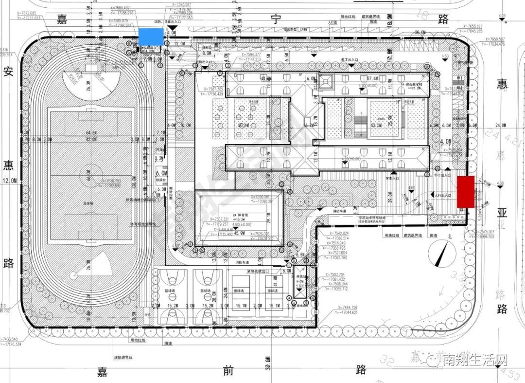
上周,南翔生活网在《上海市宋校嘉定实验学校挂牌南翔惠亚路中学?!要落户南翔?》一文中,预测上海世外教育附属云翔小学(以下简称:嘉世云小)将同宋校一起,两校一址两大门,在惠亚路中学借址办学,并将在嘉宁路校门处挂牌(蓝色方块)。

▲嘉宁路入口建设效果图
今日,南翔生活网网友Zonla告知,嘉世云小确实如预测所言,已在嘉宁路校门挂牌!让我们一起来看看挂牌后的校门吧!
 

     

 

05

惠亚路中学前期实探

先看看外立面,妥妥的高颜值。

目前正在搬运一体机等教学设施。

学校教室,也是非常现代化,屋顶设计就像琴键,非常新颖

而二楼教室的顶灯更是特别,就像小太阳一样。

特别值得一提的是,每个教室都安装了两台大金空调(真是下了血本啊)

走廊非常宽,大约3块半的大石板。

教室和老师办公室区域有中庭连接

这大概就是教室办公室

教学楼之间有空中花园在二楼连接。

小编注意到一个细节,学校屋顶装有太阳能供热系统。

而在屋顶花园有地下室空间的采光顶

肉眼可建,学校在设计时,非常考虑节能环保。

学校绿植基本种植完毕。

室内篮球场相信孩子们会非常喜欢。

室外体育场也已建设完毕。

   

编辑 | 海潮

挂牌照片 | Zonla

 

免责声明:本平台对转载、分享的内容、陈述、观点判断保持中立,仅供读者参考。本平台推送的广告信息、内容及设计均归广告主所有,本平台只作为发布方进行推送,因内容引起的任何纠纷与本平台无关,本公众平台将不承担任何责任。

                   

               

更多南翔精彩资讯,关注南翔生活网网官方微信

要闻快讯

查看全部
25号截止!这个帮扶项目征集抓紧申报!
【聚变计划】参与式工作坊开放报名
项目发布|2023年北京市妇联公益伙伴计划暨妇女儿童家庭公益服务创新项目征集启事
汪明亮:电子监控的犯罪预防功能
最美退役军人网络投票活动
古猗园荷花睡莲展荷花九景评选活动
嘉定区青少年法律知识新媒体竞答比赛
澳洲klook0元游澳洲
Student.com学旅家WorldCup世界杯

嘉定生活门户网站,嘉定网络的商业平台
服务热线:13916893730
技术支持:安拓网络Anttoweb
网站备案:沪ICP备13042283号-1
  • 网站介绍
  • 打折卡销售点
  • 服务条款
  • 招聘信息
  • 免责声明
  • 联系我们
  • 南翔派出所网上工作站
  • 模特衣架公司
  • 控件中国网
  • 闵行社区论坛
  • 嘉定都市网
  • 绍兴租房
  • 宝山网
  • 九亭论坛
  • 花桥生活网
  • 奉贤房产网
  • 上海团购大全
  • 申城热线
  • 上海鲜花
  • 南翔网
  • 南翔人论坛
  • 安亭热线
  • 新桥论坛
  • 上海列表网
  • 上海租房
  • 360免费杀毒
  • 上海房屋维修
  • 360网站导航
  • 南翔智地
  • 放心搜
  • 上海业主论
  • 安拓网络Anttoweb
  • 坛祥生活商
  • 城维沃珂网销联合办公