南翔生活网
  • 嘉定新闻
  • 精彩活动
  • 技术案例
  • 祥友汇
    • 儿童之家
    • 妇女之家
    • 志愿服务队
  • 党群微网站
  • 社区信息
  • 政策解读
嘉定生活门户网站,嘉定网络的商业平台
服务热线:021-69982177

南翔新闻

查看全部

2798套房源!嘉定轨交枢纽等2个住房项目开工!

12-18
2453
导读
- 2021年的第349天 - 嘉定明日天气:晴转阴  11℃/1℃   随着上海市新一批保障性租赁住房集中开工,嘉定的安亭城际铁社区和新成社区两个项…

– 2021年的第349天 –

嘉定明日天气:晴转阴  11℃/1℃

 

随着上海市新一批保障性租赁住房集中开工,嘉定的安亭城际铁社区和新成社区两个项目也于日前启动施工。小编从嘉定区住房保障和房屋管理局获悉,两个项目将分别于2024年下半年和2023年底建成交付。届时,可为市场提供保障性租赁房源2798套。

 

昨日(12月17日)上午,小编在安亭城际铁社区04-1项目工地看到,施工人员正在平整土地。建设方嘉定住房集团城发置业有限公司工程管理科副科长赵中亚介绍,城际铁社区地处城际铁安亭北站的北侧,位于嘉定安亭枢纽的核心区域。项目东至顾浦,西至庭丽路,南至科瓴路,北至德友路。分为03-1和04-1两个地块,共将建设8栋高层住宅、养育托管点、社区商业、文化活动室、居委会等配套用房,以及833个机动车停车位,总建筑面积在12.7万平方米左右。

效果图

“明年5月在完成基坑围护后,地下室施工也将同步进行。2022年8月开始启动地上结构建设。根据计划,项目将在2023年5月完成结构封顶,最快在2024年下半年竣工交付。”赵中亚说。

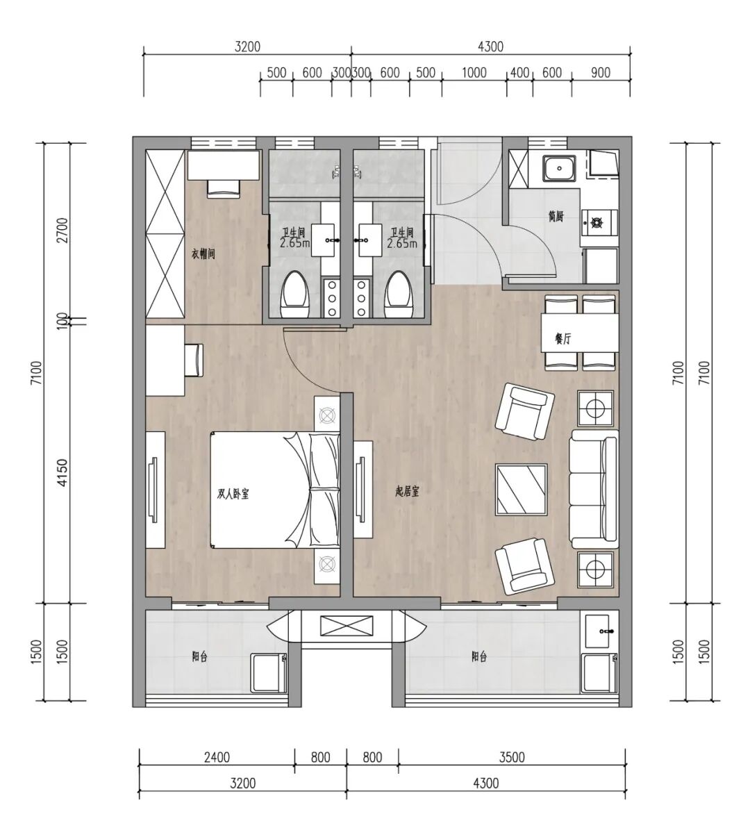
嘉定住房集团嘉住住房租赁运营有限公司副总经理龚佩红介绍,8栋高层共可为租户提供35平方米至90平方米不等的各种房型住房2018套,并且在设计上采用了大空间可变户型的设计,可根据不同需求灵活调整。

 

户型图

“可变户型可以相互组合,满足租户不同阶段的居住需求,切实满足来嘉青年择业、落户、生存、成长的核心需求。”龚佩红解释说。

效果图

除了安亭城际铁项目外,位于新成路街道的新成社区也已开工建设。这一项目西至嘉罗公路、南至A03-17地块、北至东练祁河,共将建设3栋高层住宅楼,4栋公共服务设施和326个机动车停车位,总建筑面积约5万平方米。

效果图

项目建成后可提供780套保障性租赁住房,其中 33.5平方米的住房398套,52平方米的248套,77.5平方米的134套。项目计划于2023年底竣工交付。

户型图

目前,相关部门正在抓紧制定相应的配套租赁方案。工作人员表示,嘉定将贯彻本市的《关于加快发展本市保障性租赁住房的实施意见》,坚持以人民为中心、以需求为导向、以宜居为目标,精准设计保障性租赁住房基础制度。关于租赁合同期限,原则上不少于1年、不超过3年。符合租住条件的,不设最长租赁年限。坚持初次定价在同地段、同品质市场租赁住房租金的九折以下,后续调价时,年涨幅最高不超过5%。

END

来源|上海嘉定

 

免责声明:本平台对转载、分享的内容、陈述、观点判断保持中立,仅供读者参考。本平台推送的广告信息、内容及设计均归广告主所有,本平台只作为发布方进行推送,因内容引起的任何纠纷与本平台无关,本公众平台将不承担任何责任。

                   

               

更多南翔精彩资讯,关注南翔生活网网官方微信

要闻快讯

查看全部
25号截止!这个帮扶项目征集抓紧申报!
【聚变计划】参与式工作坊开放报名
项目发布|2023年北京市妇联公益伙伴计划暨妇女儿童家庭公益服务创新项目征集启事
汪明亮:电子监控的犯罪预防功能
最美退役军人网络投票活动
古猗园荷花睡莲展荷花九景评选活动
嘉定区青少年法律知识新媒体竞答比赛
澳洲klook0元游澳洲
Student.com学旅家WorldCup世界杯

嘉定生活门户网站,嘉定网络的商业平台
服务热线:13916893730
技术支持:安拓网络Anttoweb
网站备案:沪ICP备13042283号-1
  • 网站介绍
  • 打折卡销售点
  • 服务条款
  • 招聘信息
  • 免责声明
  • 联系我们
  • 南翔派出所网上工作站
  • 模特衣架公司
  • 控件中国网
  • 闵行社区论坛
  • 嘉定都市网
  • 绍兴租房
  • 宝山网
  • 九亭论坛
  • 花桥生活网
  • 奉贤房产网
  • 上海团购大全
  • 申城热线
  • 上海鲜花
  • 南翔网
  • 南翔人论坛
  • 安亭热线
  • 新桥论坛
  • 上海列表网
  • 上海租房
  • 360免费杀毒
  • 上海房屋维修
  • 360网站导航
  • 南翔智地
  • 放心搜
  • 上海业主论
  • 安拓网络Anttoweb
  • 坛祥生活商
  • 城维沃珂网销联合办公